› Communauté › Chauffage et climatisation › Les radiateurs › [Résolu] Seche-serviettes sur circuit monotube qui ne chauffe pas
- Ce sujet contient 24 réponses, 6 participants et a été mis à jour pour la dernière fois par
ob77000, le il y a 12 années.
-
AuteurMessages
-
-
28/01/2013 à 19h15 #18778
Bonjour,
Je me permets de vous exposer mon problème.
Mon chauffage est un réseau monotube (cf. 1er schema »chauffage_avant ») où tous les radiateurs sont des radieteurs « simples » equipés d’un robinet et d’un Té de réglage.
Jusque là tout va bien.Nous avons décidé de remplacer le radiateur X par 2 radiateurs Y et Z (remplacement d’un radiateur dans une chambre + ajout d’un seche serviette dans sdb).
Le radiateur Y est un 22HB 6 orifices. Le plombier a mis une vanne bypasse en H en bas.
Le radiateur Z est un seche serviette acova avec vanne bypass en H en bas.Mon problème :
Le radiateur Z ne chauffe pas du tout
Le radiateur Y chauffe un peu sur le haut mais rien en bas.Mon plombier soupçonne la pompe de la chaudière mais je ne suis pas très sûre. Pour celà j’ai fais un test : j’ai coupé les aller/retours de tous les radiateurs de la maison excepté Y et Z, mais ca n’a rien changé.
Mon plombier ne comprend pas pourquoi ca ne marche pas, et moi je ne suis pas plombier, je n’y connais pas grand chose, je ne sais pas comment ces vannes en H bypass fonctionne.
Auriez-vous quelques idées, des tests à faire ou autre pour comprendre ce qui ne va pas?Merci,
VincentAttachments:
-
28/01/2013 à 20h12 #32082
Faites une photo du branchement d’un des radiateurs et postez-la ici.
Car je ne vois pas comment est la vanne H, ça se trouve je la connais mais sous un autre nom.
-
28/01/2013 à 20h19 #32083
Voici les photos des 2 robinetteries.
Attachments:
-
28/01/2013 à 21h36 #32084
Pour le radiateur 6 connections, il faudrait régler le débit du bypass de manière a donner un peut de puissance au radiateurs, vu qu’il chauffe deja en haut.
Pour le sèche serviettes, je ne vois pas comment il est fait, il y a peut être une canne qu’il fallait absolument positionner sur le départ.
Dans tous les cas je vous conseille de démonter le capuchon sur le coté droit du robinet bypass et voir s’il n’y a pas un réglage a l’aide d’une clé six-pans ou haleine
…
A vous lire -
29/01/2013 à 10h16 #32085
Bonjour,
Pour le radiateur 6 orifices, pouvez-vous me confirmer que :
les 2 reglages en facades correspondent à l’ouverture/fermeture des aller/retour, et le reglage sur le côté correspond au bypass?
Si oui, pour ouvrir le bypass il faut devisser, et pour le fermer il faut visser, c’est ça?Pour le sèche serviette ci joint une photo de la notice.
Donc thermostatique à gauche, reglage bypass au centre et reglage du retour à droite.Attachments:
-
29/01/2013 à 20h54 #32086
Bonsoir, aucune idée?

Merci -
30/01/2013 à 18h26 #32087donniebrasko wrote:Si oui, pour ouvrir le bypass il faut dévisser, et pour le fermer il faut visser, c’est ça?
Sur certains modèles lé dévissage correspond a la fermeture du by-pass qui sur certains modèles ne peut jamais être fermé a fond.
Essayez deja de régler en fermant légèrement.
Pour le sèche serviette c’est pareil, mais je ne comprends pas pourquoi vous avez installé un thermostatique dans la salle de bains.
-
01/02/2013 à 18h27 #32088
Bonjour,
Dans mon cas où les aller/retour de tous les radiateurs sont déjà reliés ensemble par le tube qui fait tout le tour des radiateur, il ne faut pas que j’ouvre les bypass des radiateurs en question, non? à mon avis ca ne sert à rien et ca ne fera que diminuer le volume d’eau entrant dans le radiateur.
Je vous avoue que je suis complètement paumé : le sèche serviette s’est mis à chauffer en inversant les aller/retour mais aussi en inversant la robineterie .. chose incompréhensible puisque le radiateur est censé ne pas avoir d’aller/retour specifiques.
une fois que le seche serviette s’est mis à chauffer, on a inversé les aller/retours de l’autre radiateur (car après vérification il étaient inversés), le seche serviette ne chauffe plus et le radiateur chauffe très peu, sur le haut seulement.
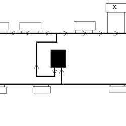
A mon sens rien de logique.Enfin dernière question, dans un reseau monotube comme le schema ci-joint (reseau quasi identique au mien), pourquoi l’eau circulerait dans le radiateur et non directement dans le tube? qu’est ce qui « attire » l’eau dans le radiateur?
MErciAttachments:
-
01/02/2013 à 20h08 #32089
Bonjour.
Si votre installation était comme celle représente sur l’image vous n’auriez absolument aucun problème vu que la chaleur « eau chaude » monte par thermodynamie.
Comme votre installation n’est pas comme celle ci, a chaque passage de radiateur il doit y a voir un réglage permettant d’envoyer une partie du fluide vers le radiateur. D’ou le réglage au niveau des by-pass.
Pour le radiateur 6 connections, il faudrait régler le débit du bypass de manière a donner un peut de puissance au radiateurs, vu qu’il chauffe deja en haut.
Avez vous suivi le conseil de Dani, ces radiateurs ont une des connections qui remonte jusqu’à top du radiateur, qui correspond absolument a l’arrivé comme vous pouvez le voir dans l’image ci dessous.

Vue dessus

Si le radiateur n’est pas correctement raccordé il ne fonctionneras pas ou pas correctement.
Pour les sèche serviettes.
C’est plus ou moins la même chose, l’arrivé d’eau doit se faire dans le tube prevu a cet effet, certains ont une canne dedans comme montré dans l’image ci après.

S’ils sont correctement raccordés il suffit de fermer légèrement le by-pass pour que les radiateurs fonctionnent.
-
01/02/2013 à 23h31 #32090
Bonsoir,
Pourquoi dites-vous que mon installation n’est pas comme celle du schéma?
La différence avec mon installation est que j’ai 2 boucles (cf schémas du 1er post).Tous mes autres radiateurs n’ont aucun reglage bypass, ce sont de simple radiateur en acier avec aller en haut et retour en bas, tete thermostatique et Té de reglage en bas.
Ce sont les 2 nouveaux radiateurs ajoutés qui ont des reglages bypass.
Je pense avoir tester le conseil de Dany en ouvrant/fermant/ouvrant un peu le bypass.. mais rien n’y fait.Mais comment expliqué que pour le radiateur 6 orifices, l’aller est très chaud, le haut du radiateur est très chaud, plus on descend plus c’est froid. Le retour reste tjrs froid…
Si l’aller est chaud c’est qu’il y a un flux d’entrée, donc un flux de sortie : l’eau chaude rentre et l’eau froide sort, au bout d’un moment il n’y aura que de l’eau chaude dans le radiateur..?? mais non, tjrs le bas froid..Pour le seche serviette, je ne pense pas que le mien ait les particularités de celui que vous présentez. En effet c’est un Acova Karena mixte, aller/retour centrées. Apparement il n’y a pas de sens sur le radiateur…
Et je veux bien le croire car il a marché dans les 2 sens possibles, et ensuite ne marche plus. J’ai l’impression que c’est lorsqu’on intervient sur le reseau, et que donc on vide un peux d’eau du réseau, puis qu’on ré-active, il n’aime pas ça (biensûre une purge est effectuée sur tous les radiateurs pour vider l’air).
Bon comme vous pouvez le voir mes explications sont confuses, mais je le suis également car je ne trouve rien de logique à tout ça.
Merci -
02/02/2013 à 9h25 #32091
Mais comment expliqué que pour le radiateur 6 orifices, l’aller est très chaud, le haut du radiateur est très chaud, plus on descend plus c’est froid. Le retour reste tjrs froid…
Si l’aller est chaud c’est qu’il y a un flux d’entrée, donc un flux de sortie : l’eau chaude rentre et l’eau froide sort, au bout d’un moment il n’y aura que de l’eau chaude dans le radiateur..?? mais non, tjrs le bas froid..Essayez de palper le radiateur devant et derriere wink a l’endroit des raccordements pour voir si vous trouvez un élément chaud ceci au fond du radiateur, je vous explique pourquoi.
Si le radiateur est raccordé a l’envers il ne chauffera jamais correctement.
L’eau chaude rentre dans le fond du radiateur et va sortir par le haut mais dans ce cas elle ne crée pas la circulation sur la totalité de la surface du radiateur elle peut rentrer dans la radiateur monter jusqu’en haut sur un seul élément (même sur le coté arrière) puis ressortir par le tube de retour qui se situe en haut (ceci dans le cas ou le radiateur serait raccordé a l’envers).
Je vous conseille aussi de procéder a une purge un peu spéciale:
Vous éteignez votre chaudière c’est très important
Vous repérez le tube de départ (juste celui du départ et non celui du retour) et vous fermez cette vanne sur la chaudière ou a proximité dans certains cas.Réparation de chauffage
Vous augmentez la pression du chauffage jusqu’à plus de 2 bars.
Ensuite vous purgez les radiateur qui ne fonctionnent pas.
Ne vous souciez de rien d’autre purgez .
si vous constatez que un minimum d’air sort mélangé a de l’eau, recommencez l’opération 1, 2,3 fois si necessaire.
Ensuite vous ouvrez la vanne du départ de chauffage et ajustez la pression.
Allumez votre chaudière et attendez de voir ce que ça donne.
Postez le résultat ici.
-
02/02/2013 à 22h17 #32092
Salut, merci pour la réponse.
Pour le radiateur 6 orifices, la semaine dernière il était monté à l’envers, effectivement il chauffé mais très très peu..
On s’est aperçue qu’il était monté à l’envers donc on a inversé. Depuis il chauffe beaucoup plus mais juste sur environ 30% de surface, sur le haut, ensuite plus on descend plus c’est froid.J’ai donc effectué à la lettre vos conseils : j’ai vidé environ une bouteille de 1,5L dans chaque radiateur, sans air du tout! et au final idem, pas de changement

le 6 orifices chauffe pareil et celui de la sdb ne chauffe pas.je désespère…
-
03/02/2013 à 16h54 #32093
derniere nouvelle : pour le seche serviette fonctionne! voici ce que j’ai fait:
– j’ai coupé les vannes d’aller/retour qui se trouvent juste avant le radiateur (qui ont été ajoutées afin de pouvoir intervenir pendant les travaux sans vidanger toute l’install).
– j’ai vider le radiateur complétement en dévissant les tuyaux reliés aux vannes
– j’ai revissé et rempli le radiateur par le retour (j’avais fermé le robinet thermostatique)
– et comme par magie, l’arrivé s’est mis à chauffer! et le radiateur aussi..je reste perplexe au pourquoi du comment mais bon, du moment que ca marche…
Maintenant il ne reste que le radiateur de la chb qui chauffe à moitié. -
03/02/2013 à 18h12 #32094
C’est bien en gros c’est la méthode préconise par alleauplombier, il s’agit de bien purger le tube du retour, faites la même opération sur l’autre radiateur pour voir si vous avez cette chance.
Je suis content que vous retrouviez le fonctionnement de vos radiateurs.
-
18/05/2013 à 9h39 #32095
Anonyme
Bonjour donniebrasko,
je suis en phase de galère avec mon installation monotube.
Puis je te contacter par téléphone ?
Cordialement
-
19/05/2013 à 14h53 #32096
Bonjour jean-charles.
Je ne pense pas que donniebrasko vous donneras ici publiquement son numéro de téléphone, d’ailleurs les forums de discussion servent aussi a garder un certain anonymat, mais si vous voulez discuter de votre sujet, nous vous apporterons notre aide du mieux que nous pouvons.
-
04/12/2013 à 10h31 #32097
Bonjour je viens vers vous car problème identique j’ai remplacer mon radiateur par un sèche serviette delonghi monté avec une valve monotube giacomini. J’ai mis un tube à l’intérieur d’environ les deux tiers de la hauteur du sèche serviette. L’eau arrive parfaitement dedans. Au moment de chauffer rien à faire, les tuyaux sont chauds mais pas le sèche serviette et ni la valve d’ailleurs.J’ai donc shunté avec une ancienne valve, voir photo.auriez vous une idée.
Merci de votre aideAttachments:
-
04/12/2013 à 18h15 #32098
L’image est trop petite pour voir ce detail.
Le sens de circulation est le même sur la nouvelle vanne?
Vous dites avoir mis un tuyau dans le radiateur, c’est un tube plastique fourni avec le radiateur?
J’imagine que votre robinet est identique a celui de l’image suivante! Si tel est le cas, c’est possible que ce soit cette cane qui pose problème.

-
05/12/2013 à 9h40 #32099
Bonjour Niel, merci de prendre le temps de me répondre. Oui c’est effectivement le même robinet. Le sens de circulation est correct, arrivé à gauche et sortie à droite. Concernant le tube j’ai mis un mètre de cuivre.Ce qui m’étonne le plus c’est que le robinet ne chauffe pas et pourtant tout est ouvert. Alors que celui shunté chauffe normalement.
Cordialement -
05/12/2013 à 19h15 #32100
Avez vous ouvert le retour, et purge correctement a la fois le départ et le retour?
Le tuyau de cuivre que vous avez ajouté n’empêcherais pas la circulation de l’eau?
Sinon démontez le robinet et fermez les deux orifices, puis ouvrez a la fois le retour et le départ et soufflez dedans, question de s’assurer qu’il n’est pas défectueux.
Postez une image de votre radiateur que l’on regarde qu’il soit bien compatible avec ce type de montage.
Il est deja arrivé dans ce forum qu’un plombier a installé le même robinet sur un radiateur incompatible, ce qui l’a obligé a racheter un second radiateur. -
06/12/2013 à 9h09 #32101
Bonjour Niel voici quelques photo du sèche-serviettes avec la canne et son montage. Si cela peut vous donner une idée. Concernant la vanne elle n’est pas bouché, l’air passe bien partout quand je souffle dedans. J’en déduis donc que le montage de ma canne semblerait être la cause du problème. Puis-je monter ce radiateur sans canne ?
Merci beaucoup.Attachments:
-
06/12/2013 à 9h12 #32102
le sèche-serviette avec la taille de la canne.
Attachments:
-
06/12/2013 à 17h33 #32103
Normalement le fait d’avoir rallongé la canne, ne devrais poser aucun problème, je soupçonne plutôt les joints toriques de gêner le flux.
Je tiens aussi a vous dire que la canne n’est pas necessaire, lorsque l’eau arrive au radiateur elle est normalement plus chaude que celle qui s’y trouve deja, donc elle va monter par thermodynamie et créer la circulation dans le radiateur.
Je démonterais la canne et je poserais le robinet dans son etat d’origine.
-
08/12/2013 à 13h53 #32081
Bonjour Niel et tout le monde.Voilà remonté mon sèche-serviettes sans la canne et tout est ok. ça chauffe doucement. j’en déduit comme Niel l’avait mentionné: les joints empêchaient le flux. Merci
-
-
AuteurMessages
- Vous devez être connecté pour répondre à ce sujet.
› Communauté › Chauffage et climatisation › Les radiateurs › [Résolu] Seche-serviettes sur circuit monotube qui ne chauffe pas









