› Communauté › Plomberie › Réseaux de plomberie en PER et multicouche › multicouche besoin d’aide
- Ce sujet contient 4 réponses, 3 participants et a été mis à jour pour la dernière fois par
granulon, le il y a 3 années et 11 mois.
-
AuteurMessages
-
-
02/03/2022 à 15h43 #24725
Bonjour,
Je rénove ma maison et j’ai besoin de conseil pour la plomberie avant de faire ma commande.
Est ce que mon réseau est correct ? Je me demande aussi si je pourrai faire tout en 20/2 (avantages/inconvénients)
A la base, je ne connais rien en plomberie, tous les conseils sont bienvenus.
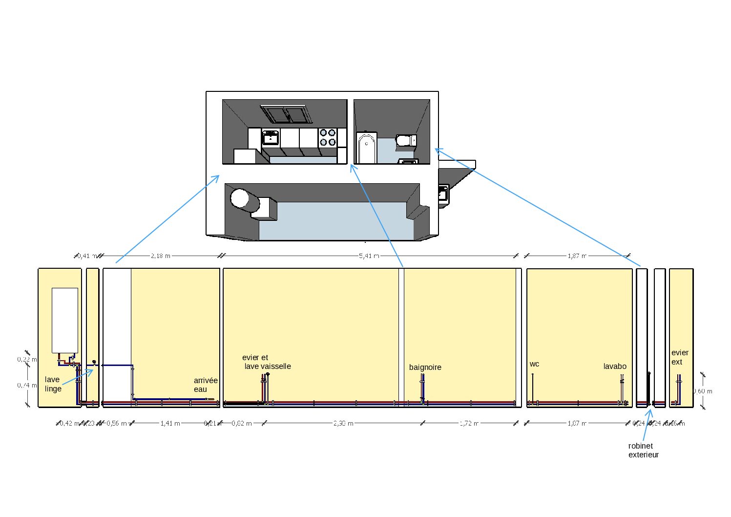
Mercil’arrivée d’eau : tuyau diamètre extérieur 21
Alimentation Réseau
De l’arrivée d’eau au ballon : 3m40 (+ lave linge)
du ballon à l’évier: 4m60
de l’évier à la baignoire : 3m
de la baignoire au wc : 1m70
du wc au lavabo : 1m90
du lavabo au robinet extérieur : 0m30
du robinet extérieur à l’évier exterieur:0,40
soit 31 mètre d’alimentation en 20/2Alimentation Appareil
– LL-LV- wc – lavabo en 16/2 soit 2m50
– évier – baignoire – robinet extérieur – évier extérieur : 20/2 soit 4m20Sorties en attente raccords et vannes
– lave linge lave vaisselle applique murale robinet 16 – 15/21 et robinets machine
– évier 20 – 15/21 male et vanne a boisseau sphérique M/F manette papillon 15/21
– baignoire 20 – 20/27 male et vanne a boisseau sphérique M/F manette papillon 20/27
– wc 16 -12/17 – femelle et robinet wc
– lavabo 16 -12/17 – male et vanne a boisseau sphérique M/F manette papillon 12/17
– vanne a boisseau sphérique M/F manette papillon 20/27 sous lavabo pour arrêt alimentation extérieure
– robinet extérieur applique murale robinet 20 – 20/27
– évier extérieur 20 – 15/21 maleAutres
– 27 collier double en 20
– 5 collier simple en 20
– 1 collier double en 16Ballon
utilisation du ballon existant avec ajout d’un Limiteur thermostatique m20/27Attachments:
-
02/03/2022 à 18h21 #56702
Bonsoir,
Je te conseille de faire un plan.
Il y en a plein sur le forum qui peuvent t’aider.
C’est plus facile pour avoir des conseils de poster un plan que de lire ce que tu veux faire.
Bonne soirée.
-
02/03/2022 à 18h58 #56703
Le plan est en pièce jointe en pdf
-
02/03/2022 à 19h33 #56704
Tout est dit.
Juste une précision.
Si le robinet de baignoire est mural, ce que je conseille fortement, il faut utiliser des sorties de cloison 15/21 car vous devez encastrer les tuyaux sur la partie verticale.
Si le robinet de baignoire est de type:
-
[*]Posé sur colonnettes, les colonnettes sont raccordés en 15/21 (généralement avec un flexible entre le attentes et les colonnettes).[/*]
[*]Monotrou il se raccorde généralement en 12/17.[/*]Pour le wc, je conseille une mini-vanne en terminaison du multicouche puis un flexible 12/17 pour alimenter le WC, c’est moins joli mais qu’est-ce que c’est pratique quand vous remplacez le WC.
A partir de la baignoire, l’eau chaude peut etre réduite en 12/16 et a partir du lavabo je ne vois pas l’intérêt de prolonger l’eau chaude pour le robinet ext.
-
02/03/2022 à 21h23 #56705
Merci
En fait c’est une vieille maison et la salle de bain est toute petite alors pas possible d’encastrer les robinets et de passer les tuyaux dans un doublage.
L’évier extérieur est en fait dans une grande veranda d’où l’eau chaude….
Quel serait le problème si je fait tout en 20/2 ? Cela me ferait des économies sur les tuyaux en prenant 25 + 10 mètres.
Bonne soirée
-
-
AuteurMessages
- Vous devez être connecté pour répondre à ce sujet.
› Communauté › Plomberie › Réseaux de plomberie en PER et multicouche › multicouche besoin d’aide

