Sujet : Demande de validation réseau évacuation construction neuve
Bonsoir à tous, et meilleurs voeux pour cette année déjà entamée ! ;-)
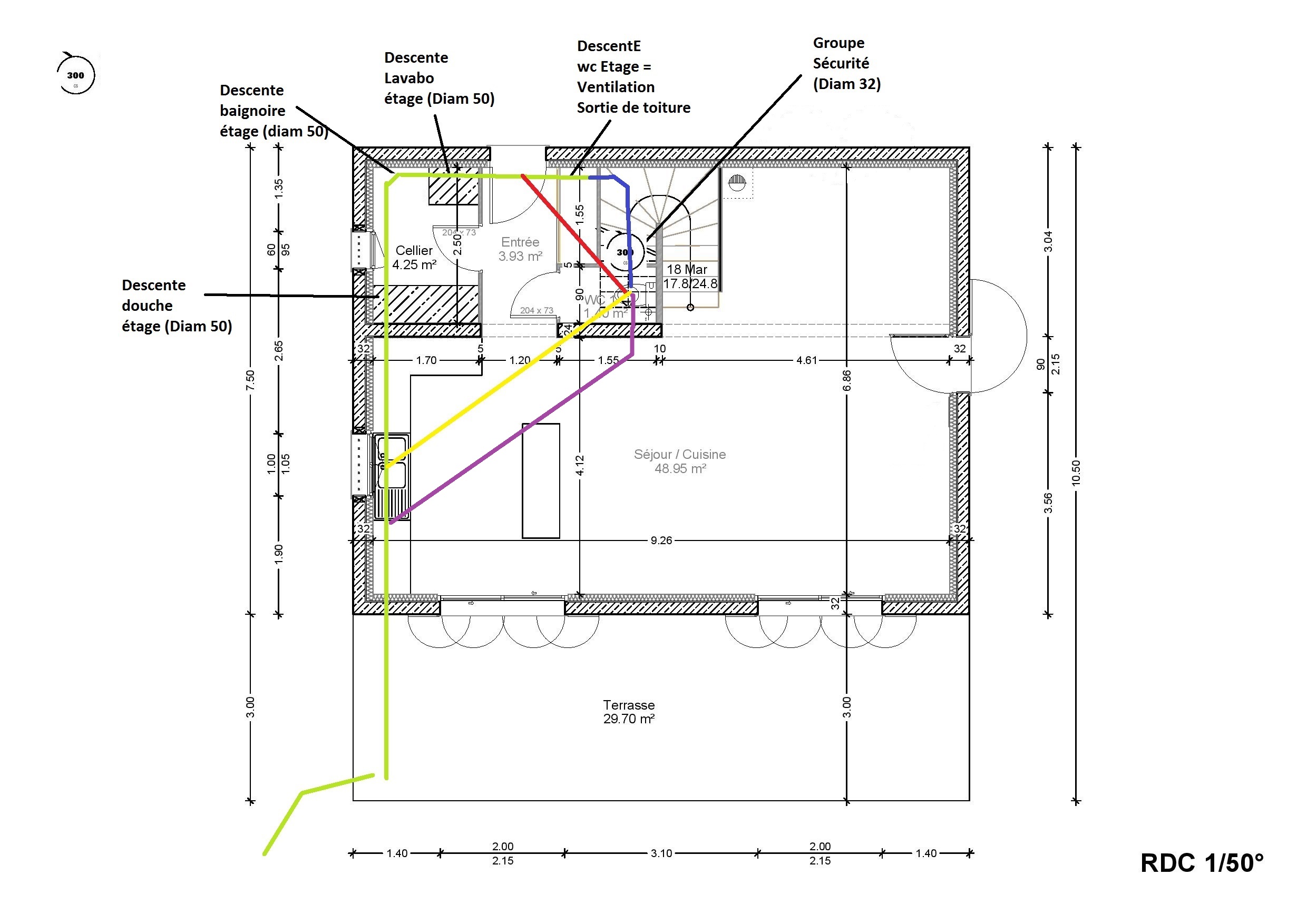
En ce moment, dans mon projet d'auto construction, je me fais une joie de.... tirer mon réseau d'évac en vide sanitaire (oui... je n'étais pas sûr de moi le jour où j'ai coulé le plancher, je n'avais volontairement pas prévu d'attente).
En vert apparaît pour moi le chemin "indiscutable", à moins que vous ayez des remarques.
Ensuite, pour le reste du réseau, toutes les autres couleurs que vous voyez, sont des combinaisons possibles.
Le plus simple pour moi serait la combinaison de couleur rouge. Sauf si vous exigez qu'il faut rejoindre le plus directement en direction du regard, dans ce cas ce sera la violette (car je crains en combinaison jaune, que le tracé passe pile dans le poteau du refend de vide sanitaire que vous pouvez voir en pointillés tout le long au milieu de la maison à l'horizontale).


