Sujet : Installation plomberie construction maison neuve
Bonjour à tous,
Je me lance dans la construction d'une maison très simple avec un constructeur pour le hors d'eau hors d'air.
Je vais donc m'occuper de la plomberie tout seul.
J'ai fait un même schéma pour tout le réseau, eau chaude sanitaire et chauffage. J'espère que je poste dans la bonne section.
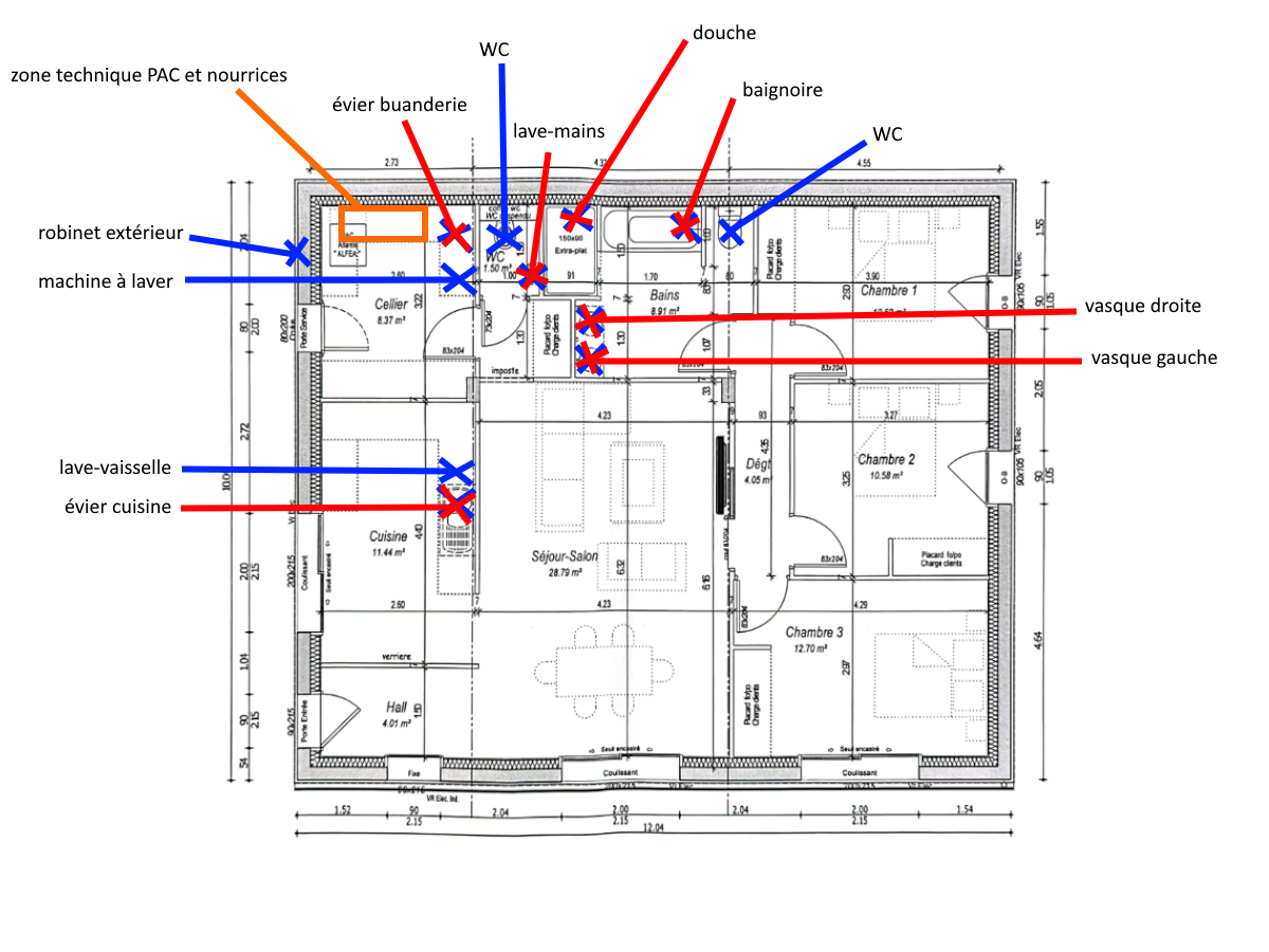
Que pensez-vous du schéma ? Je vous mets également le plan de la maison avec l'emplacement des différents éléments.
J'ai aussi d'autres questions que voici :
La maison est sur vide sanitaire, il est prévu une dalle béton puis un ravoirage de 3 cm, puis l'isolant et le plancher chauffant et un ragréage de 5 cm. Je crois savoir que l'électricité et la plomberie sanitaire passent dans la chape de ravoirage donc sous l'isolant, qu'en pensez-vous ? Ca ne risque pas de geler ? Vu la configuration je pourrais passer l'eau assez facilement dans les cloisons.
Je me suis basé sur les schéma fournis par le fabricant de la PAC (ALFEA EXTENSA DUO A.I. 3 R32) et ils préconisent un disconnecteur (type C.A je suppose), est-ce que c'est nécessaire selon vous ? Faut-il rajouter d'autres éléments (filtre à tamis, degazeur, ...) ?
Pareil pour le mitigeur thermostatique, je ne suis pas sûr que ce soit nécessaire étant donné la proximité de mes points d'eau et qu'ils seront tous équipés de mitigeurs thermostatiques dans les robinets. Qu'en pensez-vous ?
Où mettre ma nourrice salle de bain ? J'hésite carrément à la laisser dans la buanderie (local technique) comme la sdb est à côté.
Il y aura peut être des modifications ultérieurement pour utiliser l'eau du puits pour les WC et le robinet extérieur.
Merci d'avance pour vos retours.


