Sujet : Schéma plomberie en autoconstruction
Bonjour à tous. Je suis actuellement en transformation de grange en habitation en autoconstruction. Je suis en train de deviser la plomberie.
J'ai donc commencé par faire mon schéma de principe de plomberie sanitaire qui sera en multicouche.
Quelques informations concernant le projet : C'est une grange en L avec une seule partie comportant un étage (la partie nuit). La chaudière est déjà sur place mais pas encore installée (ce sera fait par le professionnel qui me l'a vendue), c'est une Smart XS 18kw de chez Okofen avec un silo à pellets le tout situé dans le garage. Elle fournira l'ECS ainsi que le chauffage au sol sur la quasi totalité de la surface de la maison (250m²). Je raccorderai aussi 2 radiateurs sèche-serviettes. J'ai donc volontairement omis de mettre un groupe de sécurité car il est déjà présent sur la chaudière d'après ce que j'ai vu sur la documentation.
Sinon, nous avons une cuve de récupération d'eau de pluie d'environ 16m3(apparement en béton)qui date de très longtemps mais je pense qu'elle n'est pas étanche et je ne trouve personne pour aller vérifier et qui soit compétent pour la refaire le cas échéant. Après il faut vraiment avoir envie de descendre par un trou de 60cm à 4m de profondeur... Pour le moment donc, pas de raccordement pour les wc.
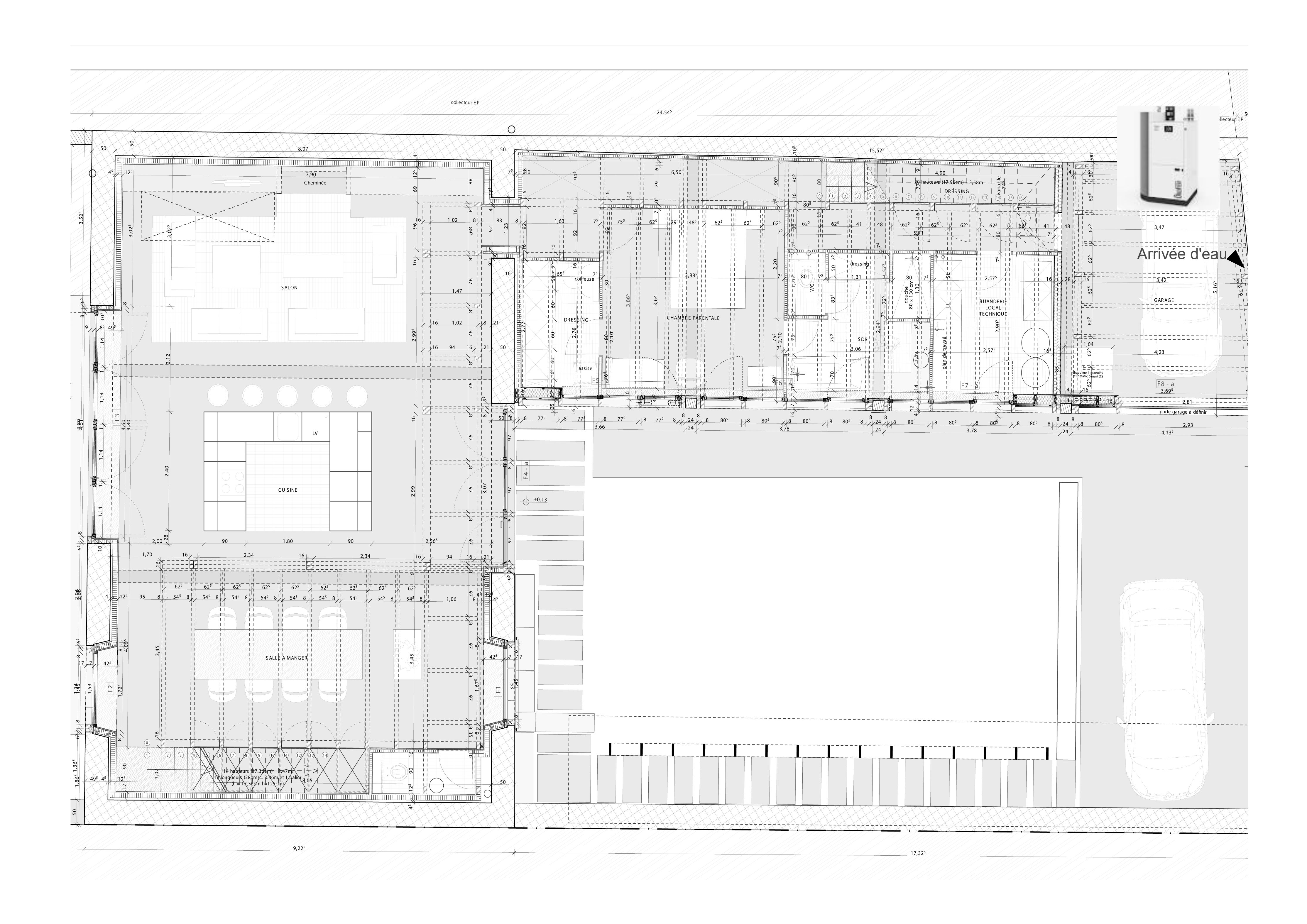
Je joins une photo du plan du Rez de chaussé. A savoir qu'à l'étage la salle de douche et les wc sont au dessus du bloc "buanderie/SdB-wc" de la partie nuit. La partie "jour" est en cathédrale sauf au dessus de la salle à manger qui est surplombée d'une mezzanine. Il y a un wc dessous et un cagibi sous l'escalier avec une arrivée d'eau (pour un éventuel congélateur qui fait des glaçons). Pour la cuisine qui se situe à une 20aine de mètres de la chaudière j'ai prévu un bouclage qui me servira aussi à alimenter le lave-main des toilettes de la salle à manger.
Merci d'avance pour vos retours et remarques qui me feront avancer dans ma reflexion ! J'espère ne pas avoir fait trop de bêtises sur mon plan


