Sujet : Dimensionnement circuit chauffage multicouche
Bonsoir, présentation très complète à été faite à vous de prendre le temps de la lire.
Je vais refaire entièrement la distribution de mon chauffage en multicouche, au départ d'une nouvelle chaudière à Pellets. Menuiseries PVC double vitrage existant, je pensais partir en 20 puis desservir en 16.
1. Calcul de la puissance des radiateurs pièces par pièces (isolation du RDC par le dessous , du dernier étage et dernier heureusement dans le faux-plafond.
2. Suivant (1) estimation de la puissance de la chaudière, histoire de ne pas le faire refiler un avion de chasse.
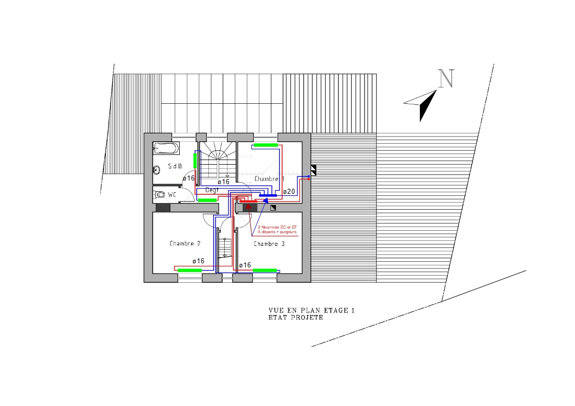
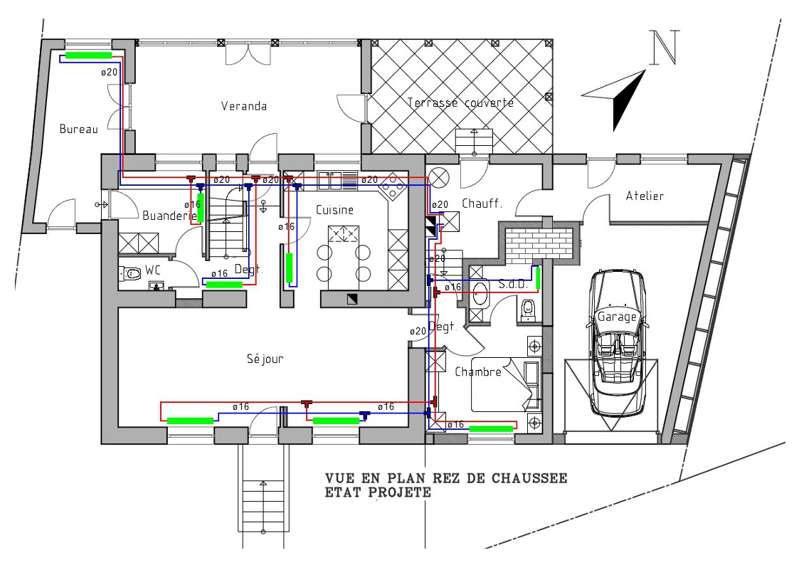
3. Calcul des diamètres distribution, nombres de nourrices.
4. Qui aurait du être placé en 1, schéma de principe de ma distribution tel que je pense faire avec mes petites connaissances, puis suivant vos très très nombreux commentaires, le rectifié afin d'économiser sur les quantités et surtout assuré un fonctionnement optimal.
Donc je vais faire ces schémas , mais rien n'empêche de me donner à l'avance vos avis.
Cordialement
Eric


