Sujet : Absence de colonne de ventilation primaire sur construction neuve
Bonsoir tout le monde j’ai besoin de vos conseils car mon constructeur ne va pas mettre de colonne de ventilation primaire dans la construction neuve de ma maison .
Soit disant que c’est que pour une maison ayant une fosse septique .
J’aimerais savoir quoi faire si je peux le faire moi meme car je ne m’y connais pas du tout .
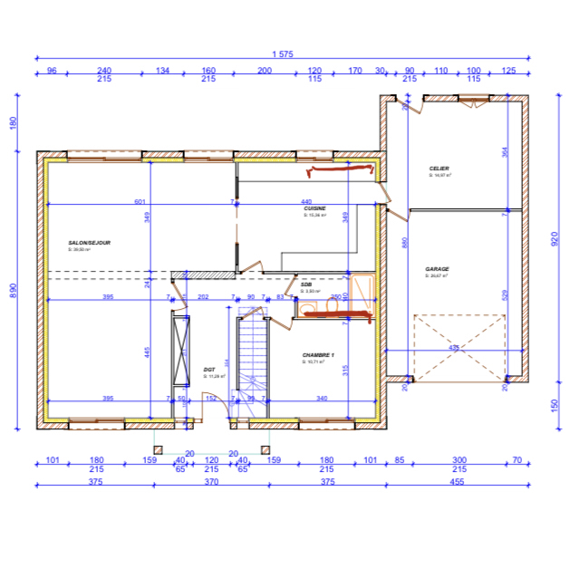
Je vous mets les plans avec en rouge les evacuations reliées entre elles et les descentes avec qq photos .
J’aimerais savoir où je devrais avoir cette colonne de ventilation primaire .
Merci bcp


