Sujet : Rénovation plomberie multicouche
Bonjour à tous,
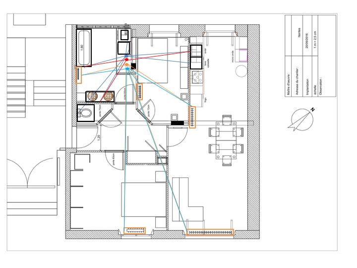
Je suis en pleine rénovation d'un appartement. Après réagencement des pièces et vu l'état de l'installation présente, la plomberie était à refaire. Je vais faire installer une chaudière à condensation par mon plombier cependant je souhaite réaliser le réseau multicouche par mes propres moyens.
Je vous ai mis en pièce jointe le schéma de principe de mon installation ainsi qu'un plan incluant la plomberie. J'attends vos critiques s'il y a lieu d'être avec plaisir.
Mes interrogations se portent particulièrement sur le diamètre de tube à utiliser pour chaque éléments et également sur l'efficacité d'un raccord entre un collecteur 3/4" avec une vanne 1/2" pour un départ baignoire en Ø20.
Merci d'avance à ceux qui prendront le temps d'étudier le projet.


