Sujet : avis plans évacuation EU + EP (maison à étage)
Bonjour à tous,
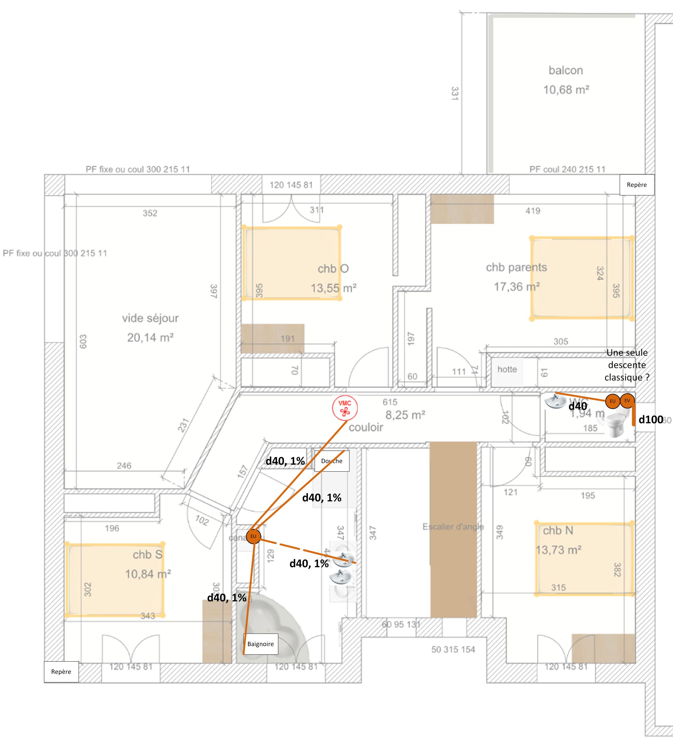
je vous soumets ces plans représentant les évacuations d'eaux usées (orange) et d'eaux pluviales (violet).
Les grands principes sont-ils respectés ? Y a-t-il des choses à éviter ?
C'est pour une construction neuve. Les tuyaux passeront dans le vide-sanitaire.
Je me pose aussi quelques question, notamment l’utilité de :
- clapet anti-retour EP
- clapet anti-retour et syphon disconecteur EU
(sachant que la maison sera de niveau avec la route)
- la double chute EU EV pour un WC et son lave-main
Merci d'avance pour vos remarques !


