Sujet : Evacuation eaux vannes et eaux usées construction neuve MI
Bonjour,
Je suis auto-constructeur et j'ai obtenu mon permis de
construire. Il s'agit d'une maison en bois à étage sur terre plein,
semelles filantes, dalle désolidarisée..
Je suis en train de finaliser le chiffrage et le planning des travaux et cela m'emmène à me ré-interroger sur certains détails.
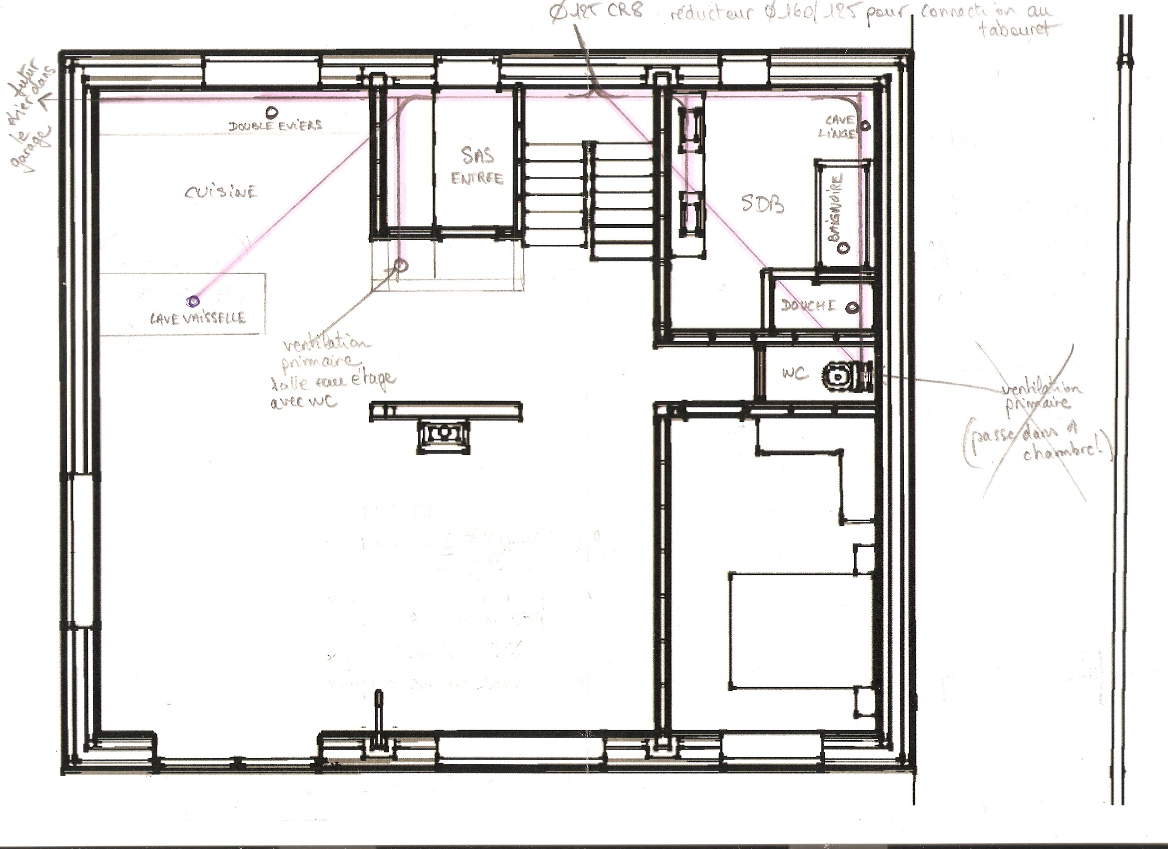
Je
suis actuellement sur les réseaux d'évacuations des eaux et je me pose
certaines questions. Le terrain sera reliée au TAE, du tabouret de
l’égout public à la maison un tuyau Ø125 CR8 sera utilisé et je pensais
utiliser du Ø110 toujours en CR8 sous la dalle pour les collecteurs
principaux.
Dois-je faire ressortir de la dalle des attentes en
Ø110 sur lesquelles j'adapterai des réducteurs (d'ailleurs comment se
passe la connections entre un tuyau PVC à joint et un tuyau PVC collé ?)
ou bien dois-je utiliser des réducteurs sous la dalle ?
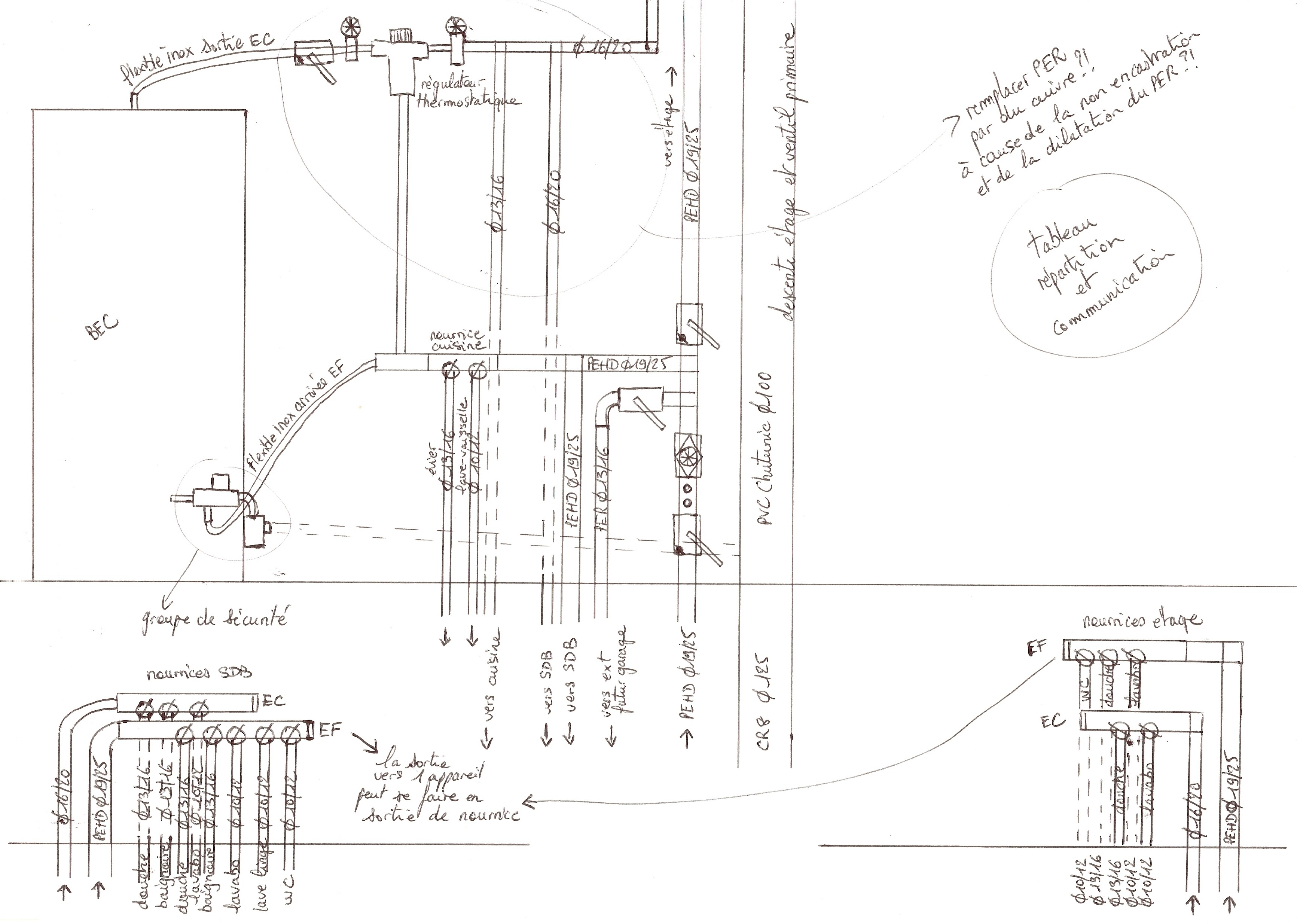
Concernant
le diamètre des tuyaux à utiliser en fonction des appareils je pense
pouvoir m'en sortir mais j'ai du mal à trouver une configuration
optimale !
Et se pose la question de la ventilation primaire,
puis-je en positionner une seule dans la continuité de la chute de la
salle d'eau de l'étage (qui comporte une douche, un lavabo et un WC :
dans quel ordre relier ces appareils à la chute et une chute double
est-elle nécessaire ?)?
Ci-joint, un plan du RDC avec ces réseaux de schématisés.
C'est la première fois que je poste un message sur internet, merci pour vos éventuelles réponses !!!


