Sujet : Besoin de conseils sur mon évacuation

Bonjour,

J'ai décidé de déplacer l'ancien WC qui se trouvait dans la salle de bain pour le mettre dans un nouvelle pièce plus loin, au bout du couloir à environ 8m de tuyau.

A priori l'installation actuelle n'a pas de ventilation primaire, l'évacuation des wc était presque "en direct" (cf photo). D'après ce que j'ai compris, j'ai besoin d'ajouter une ventilation pirmaire car j'éloigne le WC.

J'aimerais éviter d'avoir à traverser les dalles (celle cave/sdb et celle sdb/comble) car elles sont très très ferraillées mais s'il le faut, je le ferais.
Et comme j'ai récemment retiré un conduit de cheminée justement dans la salle de bain, j'ai bien un conduit d'accès au toit même si sa position ne m'arrange pas (au milieu d'un mur de la SdB).

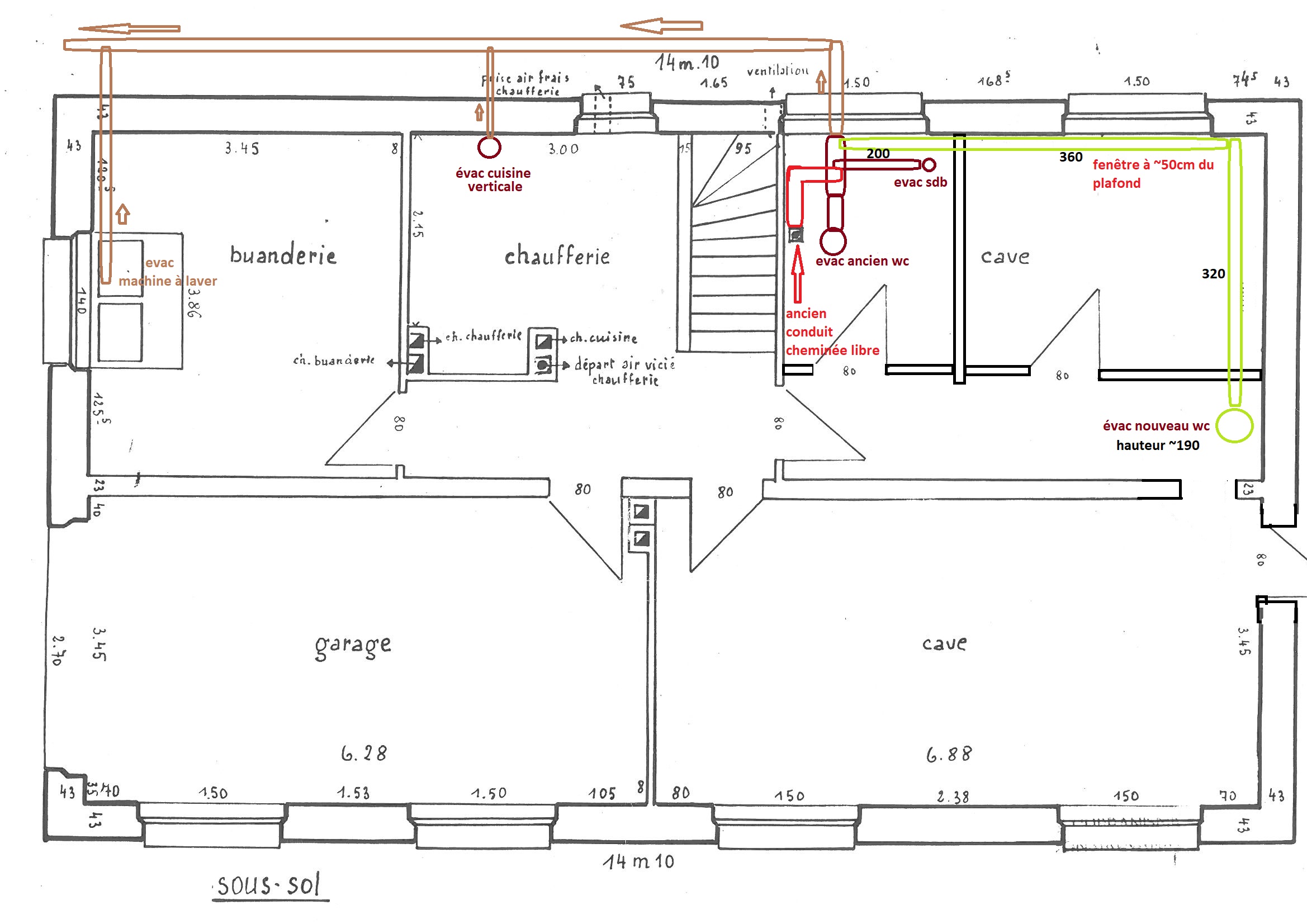
J'ai attaché un plan montrant :
- en marron le circuit actuel avec l'emplacement de l'ancien WC
- en rouge ma potentielle ventilation primaire
- en vert, ce que je prévois

J'ai également mis une photo de la pièce sous la salle de bain, qui acceuillera à la fois mes nourrices, chauffe eau et ce fameux conduit de ventilation. Le trou n'est pas visible mais il se trouve derrière le gros tube rouge (qui est l'ancienne évac du wc que je dois retirer).

Qu'en pensez-vous ? Est-ce que je dois effectivement mettre une ventilation ? Vous me conseillez d'utiliser le conduit existant ou de quand même percer les dalles pour pouvoir passer derrière le BA13 qui sera posé dans la salle de bain (mur extérieur uniquement, en haut du plan)

Merci

Sujets pièces jointes

IMG_20250506_192134.jpg, 1.26 mb, 3264 x 1506
IMG_20250506_192134.jpg 1.26 mb, 170 téléchargements depuis. 07-05-2025 

SEFFY224100812380_0005.jpg, 438.73 kb, 2338 x 1653
SEFFY224100812380_0005.jpg 438.73 kb, 184 téléchargements depuis. 07-05-2025 

2

Re : Besoin de conseils sur mon évacuation

Bonjour.

Il faut partir du principe que toute installation doit etre ventilé, et si t'as la possibilité de monter le tuyau dans le nouveau wc jusqu'en toiture, je te conseil de le faire.

Autrement tu laisse tel que c'est,  car la hauteur du tuyau vertical entre le wc et le collecteur n'est pas trop importante. Si tu constate un siphonnement du WC tu places un aérateur

Les règles sont les suivantes.

Toute installation doit etre ventilé: certaines ne le sont pas, et ca fonctionne.
La ventilation primaire est indispensable quand il y a chute (chute = tuyau vertical sur 1 étage ou 2.5ml)

Nouveau: demander un devis: simple, rapide, gratuit et sans engagement.
Ces forums sont fermés, et cesseront de fonctionner bientot.
Un nouveau forum a été mis en place ici → https://plombiers-reunis.com/v3/communaute/

Re : Besoin de conseils sur mon évacuation

Salut,

Merci pour ta réponse. En effet, j'ai lu partout que la ventilation est nécessaire, c'est un point que je veux régler avant d'installer la plomberie en elle-même.

Par contre, est-ce que c'est correct d'installer la ventilation au niveau du wc et non pas là où l'évacuation arrive ? D'après ce que j'ai compris le risque est de désiphonner la salle de bain en tirant la chasse d'eau en amont du circuit.

Comme je vais plaquer les murs puis carreler (wc et sdb), je préfère ne pas tenter le diable et partir sur une installation la plus fiable possible dès le début, car ça risque d'être très difficile de placer un aérateur si je ne l'ai pas prévu dès le départ.

Re : Besoin de conseils sur mon évacuation

Salut ,
Oui, tu as raison de prévoir ça dès maintenant. Installer la ventilation primaire près du nouveau WC est une bonne idée, surtout avec 8m de tuyau. Le conduit existant jusqu’au toit peut très bien faire l’affaire, même s’il est mal placé. Mieux vaut ça que de risquer un désiphonnage plus tard. Et une fois les murs fermés, ce sera galère de revenir dessus. Donc fonce pendant que tout est accessible !

5 Dernière modification par manonleroy12 (21-05-2025 11:25:38)

Re : Besoin de conseils sur mon évacuation

Salut,
Tu as bien raison, car en déplaçant ton WC à 8 mètres de la chute, une ventilation primaire devient indispensable pour éviter les désiphonnages et les mauvaises odeurs.
Plutôt que de percer ici des dalles très ferraillées, utilise le conduit de cheminée existant pour faire monter un tuyau de ventilation jusqu’au toit, même si son emplacement n’est pas idéal.
C’est à mon avis la solution la plus simple, conforme et efficace dans ton cas.

6 Dernière modification par Kirikool (02-06-2025 17:09:34)

Re : Besoin de conseils sur mon évacuation

Merci vos réponses.

Finalement on m'a prêté un perforateur de pro, j'ai pu faire un trou de 100mm au sol et plafond de la salle de bain pour y passer cette colonne de ventilation, c'était pas évident mais maintenant c'est fait !

Du coup le conduit sera dans le placo, et ne m'encombrera pas non plus dans la cave !

7

Re : Besoin de conseils sur mon évacuation

Parfait, partagez des images avec nous si le cœur vous en dit.
A bientot

Nouveau: demander un devis: simple, rapide, gratuit et sans engagement.
Ces forums sont fermés, et cesseront de fonctionner bientot.
Un nouveau forum a été mis en place ici → https://plombiers-reunis.com/v3/communaute/