Sujet : Connecter Thermostat Netatmo sur chaudière Chappe avec Circulateur
Bonjour,
J'ai emmenagé dans une maison individuelle et j'aimerais installer un thermostat d'ambiance Netatmo. Mais je ne sais pas comment m'y prendre et je ne trouve pas d'informations claires à ce sujet.
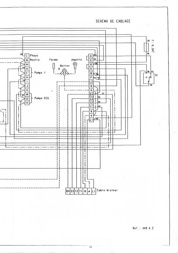
Actuellement le chauffage + eau sanitaire est dirigée par une chaudière à fioul Chappee Sempra B35. La chaudière ne dispose pas de thermostat d'ambiance. J'ai également remarqué qu'un cirulateur Salmson Priux Home 40-25/180 est installé sur la chaudière.
Selon la documentation, il semble qu'il est possible de connecter un thermostat extérieur.
Après avoir connecté le thermostat selon la documentation je me suis rendu compte
1) que pour avoir une température acceptable dans les pièces, la chaudière devait monter la température à 80° alors que sans le thermostat la 50°-60° suffisent
2) que le thermostat semblait agir et sur le circuit de chauffage et eau sanitaire
J'ai donc remis tout comme avant, sans le thermostat.
Est-ce que quelqu'un aurait une idée, conseil pour pouvoir installer le thermostat sur mon installation.
PS: j'ai parcouru un peu le forum et j'ai vu dans certains posts
1) qu'il était possible de connecter le thermostat sur la circulateur mais je ne sais pas si cela est possible dans mon cas (le circulateur est directement connecté à ma chaudière et non pas sur un circuit électrique à part)
2) qu'il était possible de changer un paramètre sur certaines chaudères Chappee pour accepter un thermostat d'ambiance. La mienne ne semble pas le permettre.
Je vous remercie par avance.


