› Communauté › Plomberie › Installations de plomberie sanitaire (schémas) › Nouveau reseau plomberie rénovation
- Ce sujet contient 5 réponses, 3 participants et a été mis à jour pour la dernière fois par
Mr, le il y a 1 année.
-
AuteurMessages
-
-
Bonjour à tous,
Je viens de découvrir votre forum, je ne sais pas si je post au bon endroit donc désolé si ce n’est pas le cas.
Nous venons d’acquérir une maison très ancienne sur deux étages avec une extension accolée, ou les réseaux sont repiqués et je voudrais partir sur un nouveau réseau en cuivre recuit avec des vannes. Dans un premier temps, nous n’aurons les moyens que de faire la partie maison, tous les réseaux de l’extension seront faits plus tard, mais je les ai indiqués pour avoir une vision d’ensemble.
Comme nous allons isoler les murs périphériques extérieurs de 12 cm, je voudrais en profiter pour y passer mon réseau que je fixerais sur le mur en brique avec des colliers isophonique sur lequel viendra se poser la laine de verre et le placo, le tout en limitant les soudures bloqué dans le placo. J’aimerais que les soudures ne soient qu’au niveau du caisson du deuxième et ensuite au niveau des arrivées
Dans mon idée, le réseau partirait de la chaufferie, et suivrait le réseau de chauffage qui monte au deuxième étage dans les combles, pour une distribution en pieuvre. Celui-ci est actuellement dans un coffrage qui longe trois coté de la maison.
Je viens d’acheter des couronnes de cuivre Wicu / 75m en 16 / 20m en 14/ 40m en 12.
1/ Dans un premier temps, je voudrais savoir si ce système de pieuvre est cohérent vu les distances ou s’il est préférable de tirer des lignes en direct ? J’étais parti pour faire la distribution en 16 jusqu’au grenier et retomber soit en 14 pour la baignoire / évier soit en 12 pour lavabo / lave-vaisselle / WC. Je voudrais éviter les pertes de débit au maximum.
2/ Le fait que le tuyau d’eau froide soit proche du tuyau d’eau chaude et du tuyau de chauffage ne va-t-il pas réchauffer l’eau ?
3/ Est-ce que le fait de fixer les tuyaux sur la brique ne va pas les refroidir ou cela reste anecdotique ?
4/ Je vais acheter une arbalète pour cintrer les tuyaux, les galets de 16 vont bien sur du 16 en wicu ou il est préférable de mettre du 18 vu la légère surépaisseur ? Ou alors juste un ressort ?
5/ Pour la soudure des raccords et des T, est-ce qu’à l’étain cela suffit ou faut-il mieux braser ?
Merci d’avance, et n’hésitez pas à me poser des questions ou à me donner des conseils que je peaufine le projet.
-
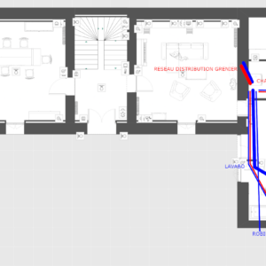
Je n’arrive pas à ajouter d’autres images donc je les rajoute ici.
La c’est le 2eme étage et le RDC avec les dimensions si cela peut aider
Merci -
Anonyme
Bonjour .
Voici queques conseils en avant première :
Vu le prix des matériaux il vaudrait mieux pour vous passer sur le multicouche qui est aussi bien que le cuivre et coûte bien moins cher et plus facile à travailler . Il existe aussi du PER mais n’est pas aussi bien que le multicouche.
Quelque soit le matériel utilisé, il faut toujours le passer devant l’isolation et jamais derrière en zone froide sinon la moitié de la production de chauffage sera perdue.
Pour les tuyaux d’eau froide à proximité du chauffage. Oui l’eau froide sera légèrement réchauffée et fera augmenter la pression statique de votre installation il faudra poser une soupape de sécurité quelque part permettant de sécuriser l’affaire
-
Merci pour votre réponse.
Si possible j’aimerais bien une confirmation du dimensionnement de mon reseau.
Merci d’avance1/ Dans un premier temps, je voudrais savoir si ce système de pieuvre est cohérent vu les distances ou s’il est préférable de tirer des lignes en direct ? J’étais parti pour faire la distribution en 16 jusqu’au grenier et retomber soit en 14 pour la baignoire / évier soit en 12 pour lavabo / lave-vaisselle / WC. Je voudrais éviter les pertes de débit au maximum.
-
Bonjour.
Alors comment avez vous fait pour les passages? derrière la laine de verre en zone froide?
Vous semblez avoir de lignes super longues il faut utiliser des diamètres importants, puis vous ne donnez pas beaucoup de details pas de schéma ni rien , il faut tout relire pour comprendre.Materiel utilisé, cuivre, PER ou multicouche?
Quelle est la longueur des lignes en particulier de l’eau chaude.Moi je ferais
une distribution en 20 pour l’eau froide (si plus d’une salle de bains alimenter en 20 intérieur)
puis en 20 pour l’eau chaude mais a reduction progressiveAttention a la longueur des lignes pour l’eau chaude eu dela de 10métre maxi de tuyau c’est trop long
Cette discussion vous donne toutes les réponses, il suffit de noter tous les doutes que vous avez, puis prendre des notes.
-
Merci pour votre réponse.
Je pense passer derrière la laine de verre, mais je vais isoler les tuyaux.
Comme indiqué, ce sont des tuyaux de cuivre.
Pour le schéma, je ne trouve pas de logiciel à utiliser.
Pour les longueurs, si je passe en direct au droit, j’ai 23m pour le point le plus loin, si je passe par les combles, j’ai 29m.
Si je suis les courbes du diamètre en fonction du coefficient, je devrais être en 18 minimum.
Pour les longueurs, que préconisez-vous ?
Je vais regarder le sujet.
Merci
-
-
AuteurMessages
› Communauté › Plomberie › Installations de plomberie sanitaire (schémas) › Nouveau reseau plomberie rénovation



