› Communauté › Plomberie › Installations de plomberie sanitaire (schémas) › Avis sur mon installation
- Ce sujet contient 2 réponses, 2 participants et a été mis à jour pour la dernière fois par
Alleauplombier, le il y a 13 années et 4 mois.
- AuteurMessages
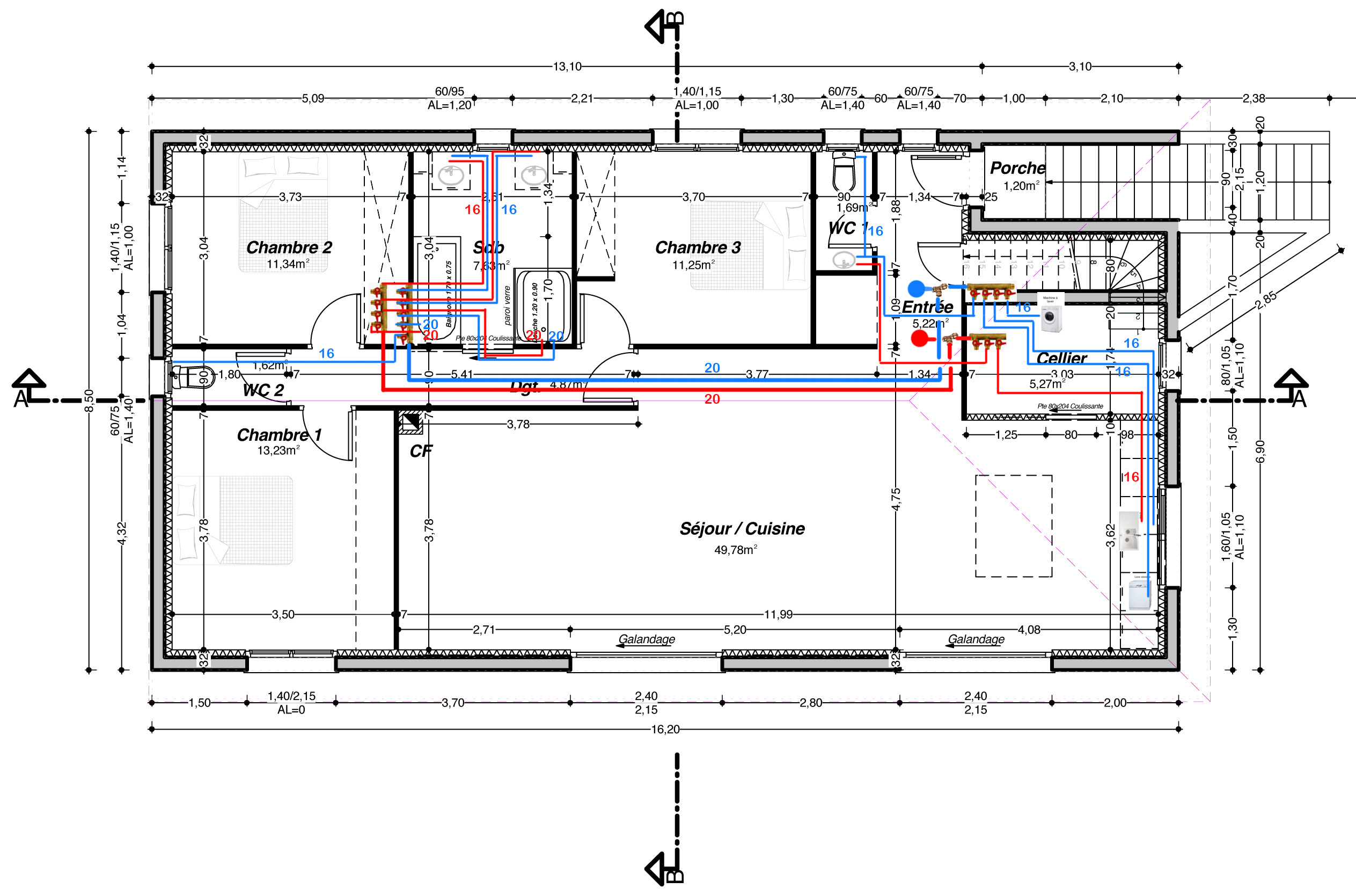
Voilà , j’ai dessiné les plans de la plomberie et j’aimerai bien avoir vos avis éclairés sur ces petits schémas, voir ce qui est bien et pas bien.
J’hésite entre une installation avec une seule nourrice énorme ou alors la séparer en 2 pour alimenter la salle de bain.
Quelques dessins valent mieux qu’un long discours
L’eau arrive à la maison par un PEHD de 32mm au garage/ sous sol et la partie habitable est a l’étage.
Voici deja le schema plomberie complet en version 4 nourrices
et le réseau du Garage sous-solVoilà le plan de l’étage avec 4 nourrices
Et le plan en version simple nourrice
Bonjour.
Pour ce schéma n°2 du premier message il faut prendre les ligne de robinets extérieurs avant le réducteur de pression, ce qui vous permettras d’avoir du débit et de ne pas avoir une chute de pression dans la maison lorsque un robinet extérieur est ouvert.
Pas besoin de toutes ces vannes sur l’arrivé vous installez, compteur-> clapet anti-pollution-> Piquage vers extérieur avec vanne a purge-> puis réducteur-> puis ce que vous voulez ensuite.
L’eau chaude qui parts tout de suite après le ballon vers la buanderie est en Ø20, avec vous vraiment besoin de cette section de tubes pour l’eau chaude, attention car les pertes seront énormes.
La vanne sur l’arrivé juste après le premier té, ainsi que la vanne juste après le ballon ne servent a rien…
Il faut savoir que plus vous utilisez des raccords et plus vous aurez de l’entretien et des risques de fuites.Pour l’étage.
J’utiliserais la solution n°2 qui me semble plus adapté.
Toutefois j’attire votre attention sur le longueur des tubes d’eau chaude, dans la salle de bains du premier l’eau chaude va être extrêmement longue a arriver.
Je vous conseille de lire cette page sur les diamètres puis celle ci sur la contenance des tubes, pour vous donner une idée de l’eau chaude que vous allez perdre tous les jours parce qu’elle va se refroidir dans les tubes, avez vous envisagé un bouclage si les distances sont importantes.
- AuteurMessages
› Communauté › Plomberie › Installations de plomberie sanitaire (schémas) › Avis sur mon installation
