Sujet : Estimation faisabilité et coût de déplacement de pièces
Bonjour,
à la recherche d'un bien à acheter une première acquisition, et n'étant pas bricoleur du tout, j'ai besoin d'aide de pros pour savoir si ce que j'envisage est faisable et pas trop coûteux.
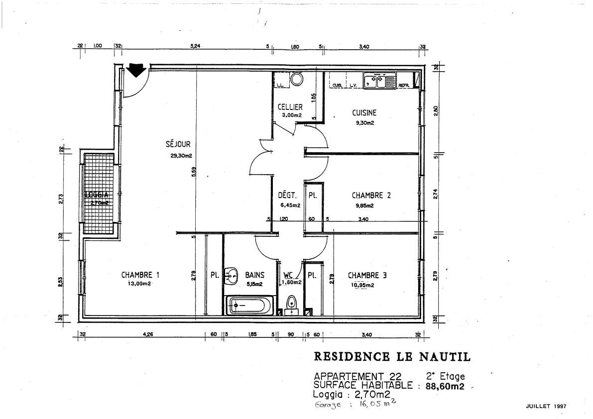
Voilà le problème et le plan de l'appartement en question et en pièce jointe (2ème et dernier étage d'une petite résidence datant de 1998).
Rien de bien original mais je souhaiterais déplacer le chauffe-eau électrique (marque De Dietrich tout neuf puisque de février 2012 et d'une capacité de 200L) et déplacer la cuisine pour mettre tout ce monde dans la chambre 1, et donc transformer la cuisine actuelle en chambre. Histoire de faire un salon et cuisine ouverte, et avoir les 3 chambres du même côté. Et j'envisage de cloisonner une partie de la cuisine pour en faire un cellier où je ferais mettre chauffe-eau, arrivée d'eau pour lave linge et rangements. Et transformer le cellier d'origine en dressing, ouvert sur la nouvelle chambre.
Le projet est-il selon vous faisable ? Avantages et inconvénients ? Travaux à effectuer et montant approximatif ? J'ai fait pas mal de recherche depuis quelques jours et j'aimerais voir si vos conclusions sont proche des miennes. A savoir que le principal soucis serait pour l'évacuation des eaux de la nouvelle cuisine (et la pente obligatoire à ce réseau là => surélévation obligatoire du sol, carrelé comme tout l'appart). Sans compter adapter électriquement la nouvelle cuisine aux normes, installer une VMC (inexistante dans cette pièce). Et d'autres questions pratiques : cette pièce a une porte fenêtre donc pas possible de mettre meubles et évier de côté (près de la loggia) NI du côté SDB puisque cloison. Du coup la cuisine serait grande mais pas trop équipée (sauf ilot central). Et je n'ai pas parlé de la réaffectation de l'ancienne cuisine (arrivées à condamner ?).
J'ai eu, via le plombier de l'agence qui vend ce bien, une idée de devis, très rapide et brefs (pas de détails des travaux) qui tournerait autour des 4000 euros HT. Pour, visiblement, puisque je n'ai pas eu de contact direct avec cette personne, bouger le cumulus et relier la nouvelle cuisine au réseau de plomberie (peut-être plus ou moins, je n'en sais pas d'avantages).
Merci de me dire ce que vous penser de toute cela.


