Sujet : Installation bitube en multicouche
Bonjour à tous,
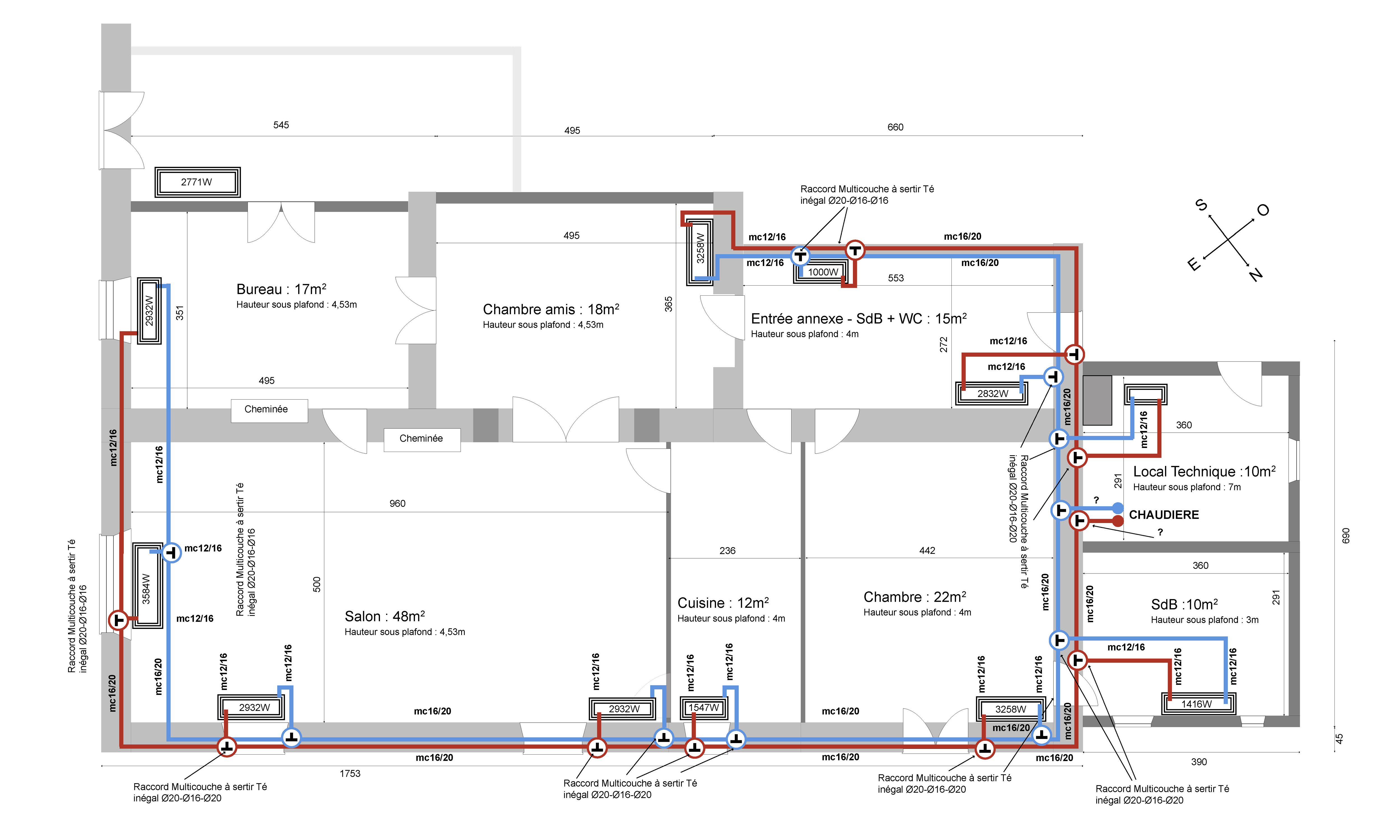
Je souhaite modifier l’installation de plomberie de chauffage dans un appartement de 150m2 des années 1900.
L’installation refaite il y a une trentaine d'année à été réalisé en apparent et en série, elle fait environ 22kw.
J'ai réalisé ce schéma de chauffage en bitube composé de 2 lignes, avec beaucoup d’interrogations en suspend quant au fonctionnement optimal de celle-ci.
A savoir, la conformité des diamètres des tuyaux multicouches utilisés.
Diamètre de sortie de chaudière en 20 ou 26 (collecteur ou TE pour alimenter les 2 lignes?)
Des thermostatique seront installé sur les radiateurs,, hormis un par ligne.
L'équilibrage d'un telle réseau sur ces deux lignes sera t-il complexe?
Vue la hauteur des et le passage des tuyaux en dessus des fenêtres des purgeurs automatiques seront prévus au point les plus hauts.
Serait-il préférable d'avoir un colleteur en sortie de chaudière alimentant plusieurs lignes composées de 2 à 5 radiateurs (Mélange de bitube et pieuvre)?
Pour l'heure je ne suis pas encore fixé sur le type de chaudière (Probablement chaudière à bûches)
Merci pour vos précieux éclaircissements.


