Sujet : Transformation salle de bains
Bonjour à tou(te)s
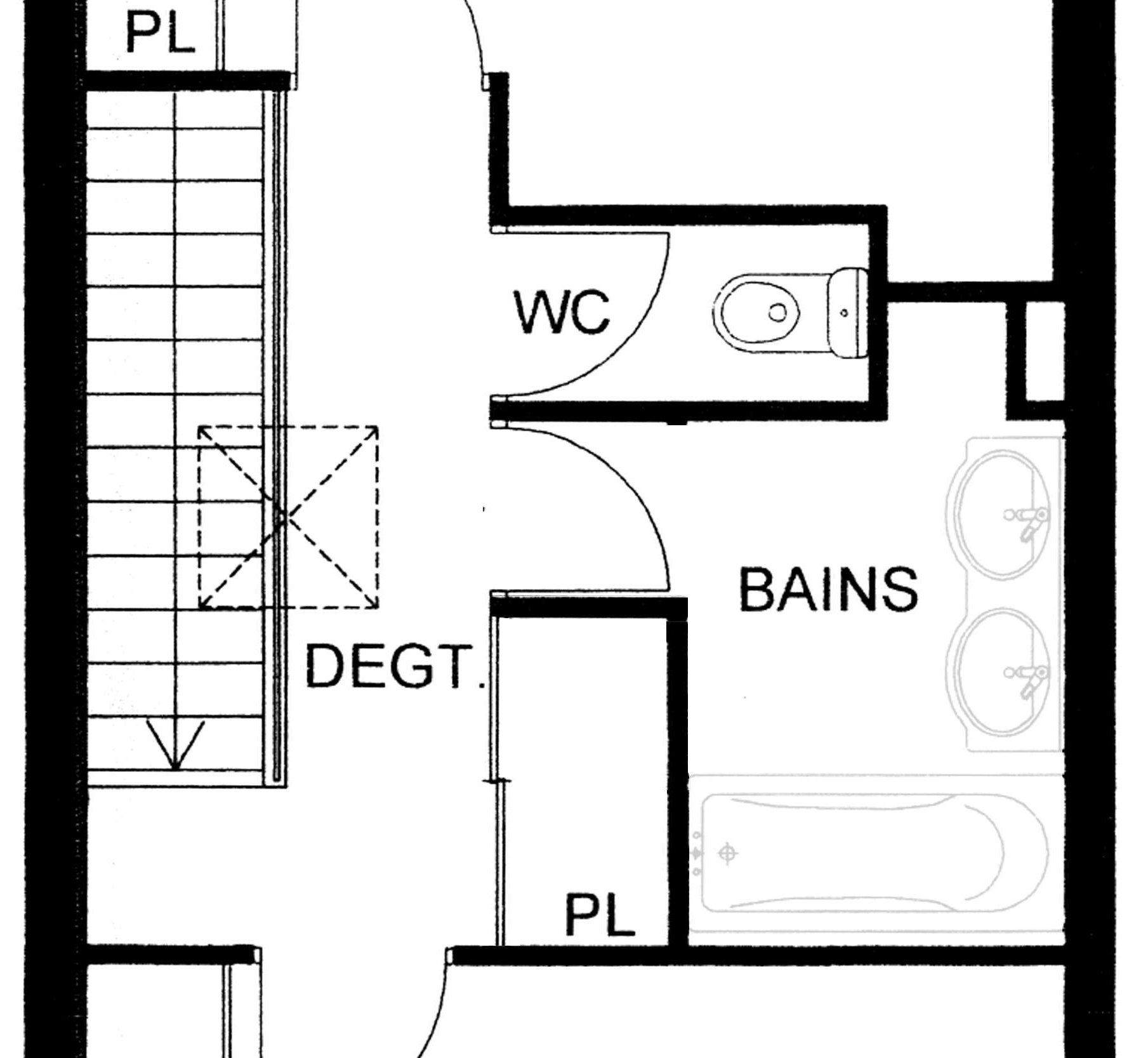
voilà notre (petit) soucis. Nous comptons transformer notre salle de bains principale afin de l'agrandir, de remplacer la baignoire par une douche (italienne ?), de remplacer la double vasque par une seule et de faire un coin rangement afin d'y installer notamment un lave linge. Le plan de la salle de bains en question est joint.
Le remplacement de la baignoire par une douche est-il compliqué ? En terme de plomberie, quels sont les règles à respecter, travaux à faire. Le principal soucis et impératif, c'est de prévoir arrivée et évacuation d'eau pour pouvoir installer le lave-linge. Dans l'idéal, le lave-linge serait rangé dans un placard près de la porte (dans l'actuel placard de couloir dont la cloison sera abattue pour gagner en surface).
Comment et par où faire passer les tuyaux pour relier le lave-linge ? Pour ce qui est de la douche, il me semble qu'une douche italienne n'est pas trop "jouable" et qu'une petite marche d'une dizaine de cms permettrait de cacher et installer les raccords nécessaires pour la douche. Mais dans ce cas, comment faire pour continuer et cacher la plomberie jusqu'au lave-linge ?
Sans compter qu'une distance minimale, me semble t'il, doit être respecter entre le lave linge et son raccord électrique ET la douche ? Non ?
Merci de votre aide


