Sujet : Plan de chauffage méthode Tickelman
Bonjour à tous,
Comme me l'a fait toucher du doigt Darius j'ai pas le droit de ma planter sur une telle installation de chauffage central.
J'ai bien noté sa remarque concernant l'eau qui monte plus facilement qu'elle ne descend.
Juarosé m'a parlé de la méthode Tickerman que j'ai exploité pour ce nouveau plan.
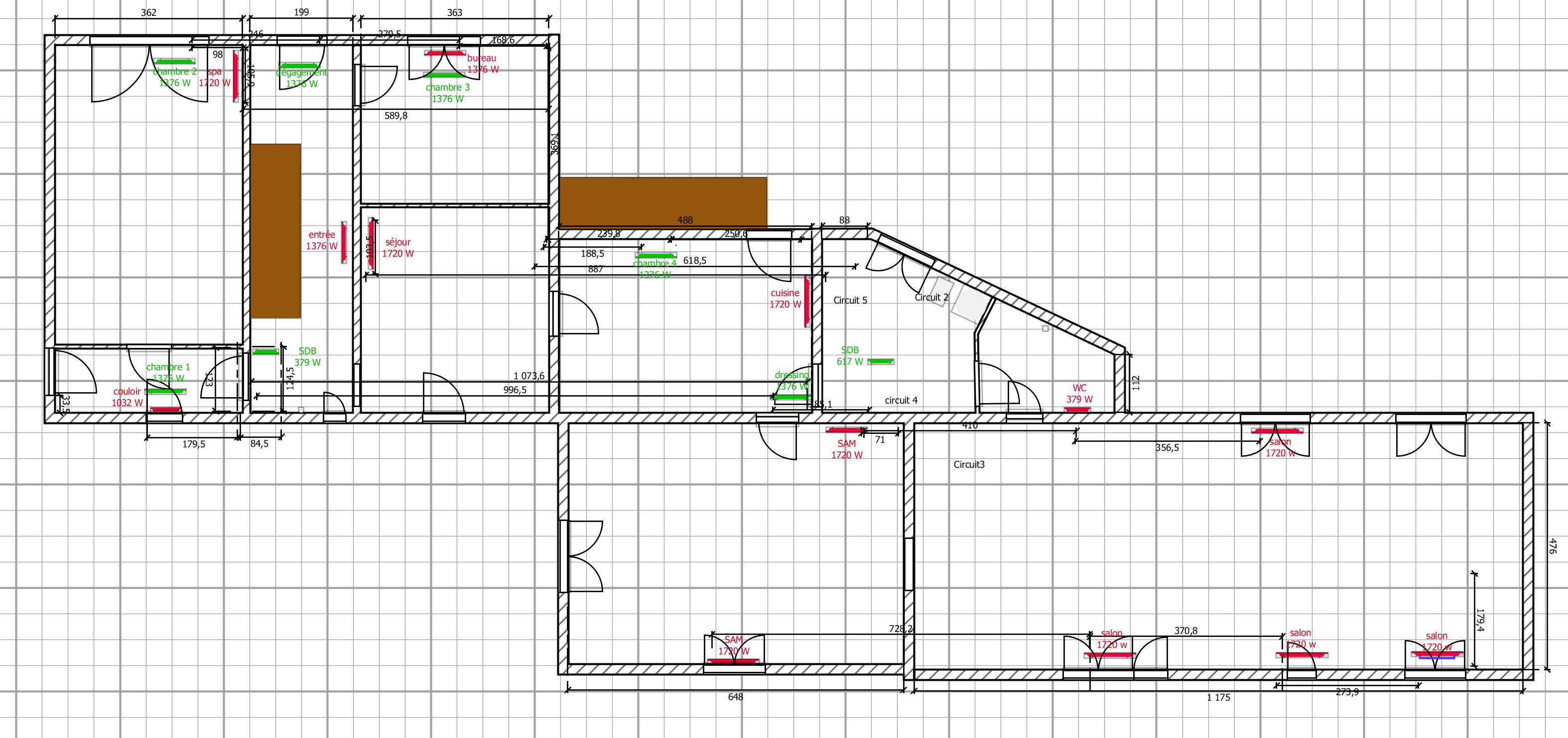
Vu la configuration des lieux et du nombre d'ouvertures, je n'ai pas d'autre possibilité que de passer en plafond.
La méthode Tickerman me fait tirer environ 30% de tube en plus, mais si c'est la solution pour que l'installation fonctionne bien c'est pas le tube qui est le plus cher.
Sur les circuits 1 et 2 je n'ai pas d'autre choix que de cheminer au mêmes endroits avec la boucle. Je reste en plafond et j'alimente les radiateurs de l'étage en ascendant.
Sur le circuit 3 en revanche je positionne l'arrivée et le retour aux 2 extrémités, je redescends du plafond et reste au même niveau pour alimenter la ligne d'eau chaude et celle d'eau froide.
Sur les circuits 4 et 5 j'ai la même problématique de cheminement que pour les circuits 1 et 2 sauf que là je suis en descendant sur tous les radiateurs, mais ce sont des circuits de 3 radiateurs seulement pour chacun... Je me dis que peut-être ça peut le faire.
J'ai fait un plan d'implantation des radiateurs il est fait sur le RDC qui n'est pas forcément le même que l'étage, c'est pour ça qu'il peut paraître y avoir des aberrations. Les radiateurs de l'étage sont en vert et ceux du RDC en rouge.
Merci d'avance pour vos commentaires.


