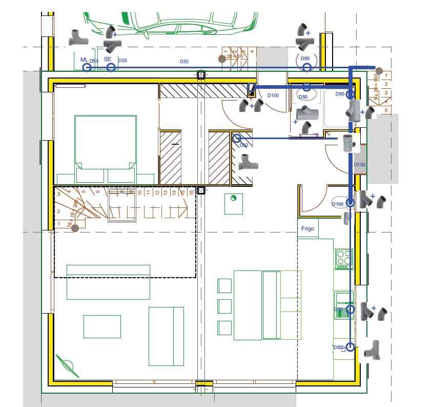
Sujet : Plan d'évacuation
Bonjour à tous,
Je pense m'occuper de la partie plomberie de ma future habitation R+1 dans quelques mois et je sens que ce forum très complet va m'être très utile: merci d'avance en tout cas!
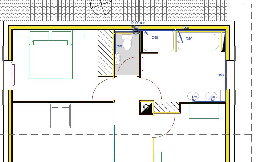
Pourriez vous jeter un oeil à mon schéma d'évacuation? Ca vous semble conforme?
L'évacuation sur toiture ne tombe pas exactement au dessus du passage dans le placard au RDC: il y a 50cm de décalage . Je comptais utiliser un tuyau coudé pour la descente. Est ce que c'est quelque chose qui se fait?


