Sujet : Création d'un réseau de plomberie en multicouche
Bonjour à tous,
Je viens tout juste de m'inscrire sur votre forum, c'est donc mon premier post ici mais pas la première fois que je lis des sujets. J'ai appris beaucoup de choses et il semble bien que ce l'endroit le plus approprié pour les questions de plomberie. Si je viens solliciter votre aide, c'est parce que je suis débutant en plomberie mais je souhaiterais me lancer et effectuer mes travaux moi même dans un petit studio que je vais bientôt rénover. Le montant des devis proposés étant une première motivation (je n'ai pas le budget) et le fait que je sois bientôt diplômé en architecture en étant une autre. J'aime bien bricoler, je sais faire pas mal de choses et pour mon métier futur, je pense que c'est bien de connaitre un minimum de choses dans divers corps de métier.
Bref! Tout ça pour vous demander conseil sur l'installation que je prévois de faire. Le réseau d'alimentation en eau devra servir un évier, un lave vaisselle, un lavabo, un lave linge, une douche et un WC.
Je pensais partir sur du multicouche car il semble que la mise en œuvre soit assez simple et une très bonne alternative au cuivre avec une meilleur résistance/longévité que le PER classique.
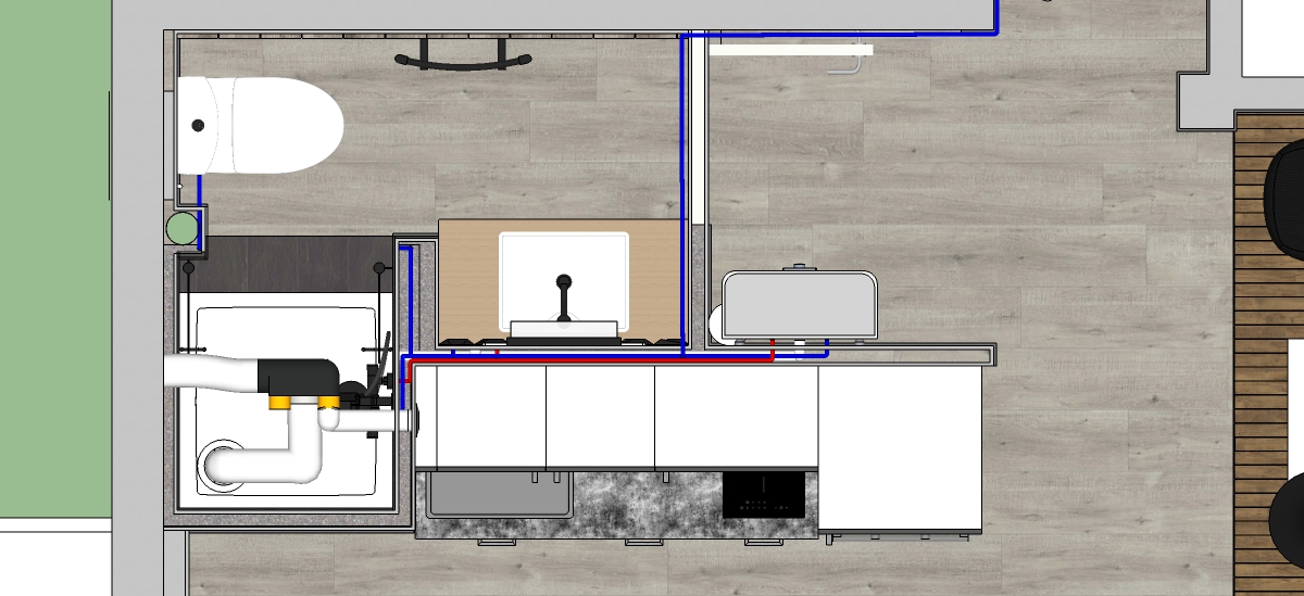
Pour l’exécution, je pensais couper l'arrivée d'eau principale cuivre au niveau de l'angle de ce mur et la faire partir tout droit afin qu'elle rejoigne la future cloison qui sera en face de la porte visible sur cette photo. Cette future cloison accueillera une nourrice accessible par une petite trappe technique.
Ma principale interrogation : En quoi effectuer le raccord qui ira de cette section jusqu'à la cloison d'en face ?
- Directement raccord cuivre/multicouche à sertir ? (en sachant que l'accessibilité à cet endroit ne m'arrange pas du tout donc bof bof)
- Manchon droit avec prolongement en cuivre et donc soudure ? Si oui, la soudure étain est-elle envisageable car je n'ai pas vraiment envie d'investir dans un poste à souder oxy-acétylène pour si peu... L'étain est-il fiable pour ceci ? Bon il faut savoir que c'est seulement une arrivée d'eau froide en 14 ou 16mm, je n'arrive pas à savoir.
- Autre ?
Bref mon principal problème est cette liaison multicouche-cuivre en somme... Sur les deux autres images, on voit les différentes dessertes d'eau et les évacuations que j'ai dessiné. Faites moi part de vos remarques eventuelles. La c'était dans le cas d'une distribution avec piquages mais si j'ai bien compris, pour le multicouche, on part sur un tuyau par point d'alimentation donc je compte 4 tuyaux eau froide (alimentation lave linge et lave vaisselle partagent le point d'eau de l’évier et du lavabo ?) et 3 tuyau ECS.
La nourrice sera alimentée à l'arrivée principale par la canalisation cuivre déviée pour l'eau froide et en ECS directement depuis le chauffe eau ?
Voilà, j'ai terminé mon roman, merci d'avance à ceux qui voudront bien me répondre ! ![]()


