Sujet : (Résolu) évacuations et rénovation lourde
bonjour ,
je suis au commencement d'une rénovation lourde qui commence par la dalle et les évacuations.
pour des raison de planning . je fais al dalle et les évacuations avant la tranchée de raccordement aux tout a l'égout.
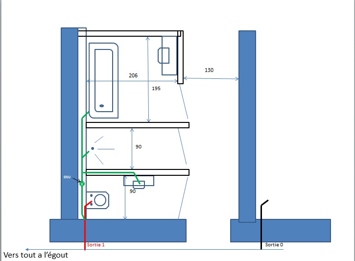
Ça ne simplifie pas les choses mais les trous dans les murs sont faits ( pour passer un tuyau de 100) ....
le bâtiment est une longère de 18 m perpendiculaire au tout a l'égout à 50 m au plus loin du bâtiment à rénover.
Nous allons passer un tuyau de 160 pour évacuation vers le tout a l'égout qui va longer le bâtiment et dont la pente est de 1% du point le plus loin ce qui permet d'arriver au tout a l'égout sans pompe de relevage .
Question 1 : 1% est ce suffisant ?
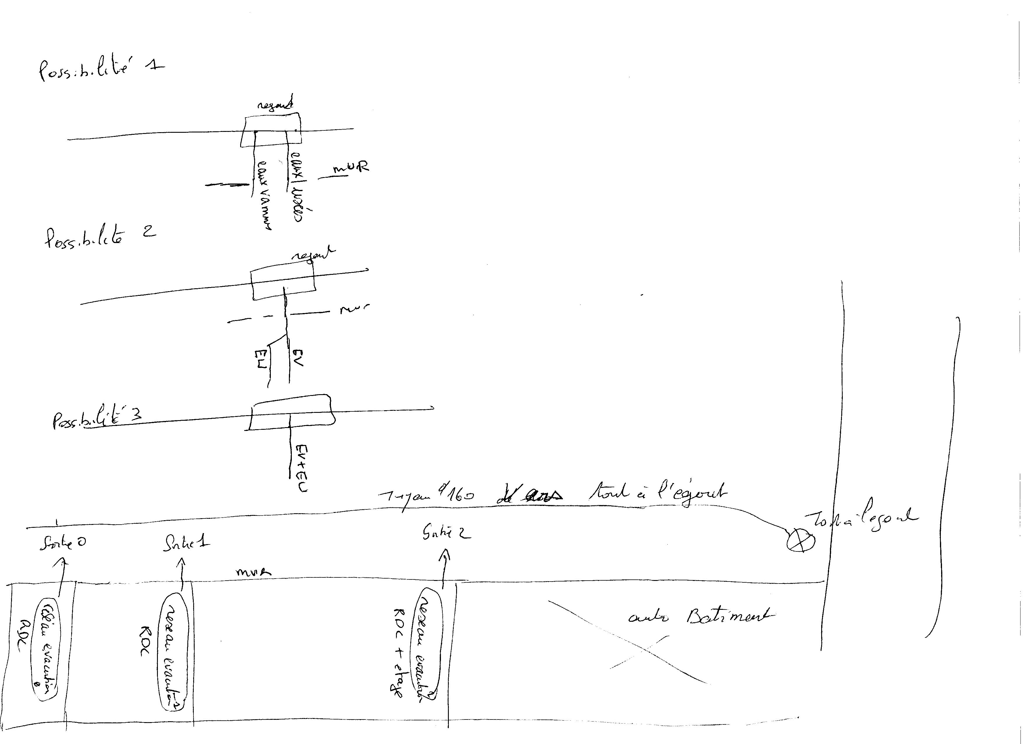
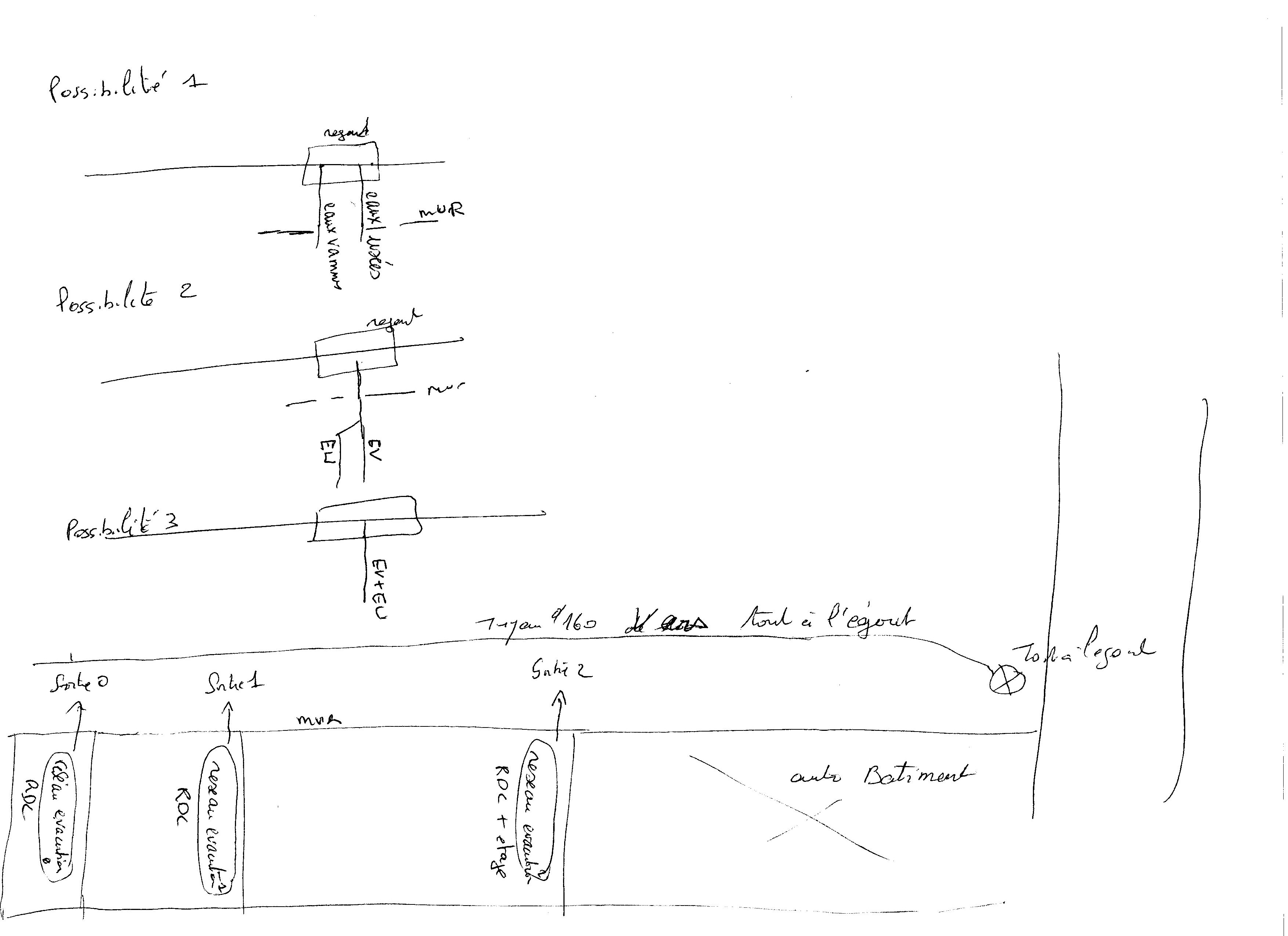
Il y aura 3 sorties d'évacuation qui d’après l'entrepreneur vont se raccorder directement au tuyau de 160 qui part au tout a l'égout et sont représentées au schéma ci dessous :
- possibilité 1 :
raccorder les 2 tuyaux en parallèle de façon suffisamment espacée pour les connecter directement sur le tuyau de 160 ( j'imagine avec double T consécutifs)
problème1 : faire un grand trou dans le mur de fondation qui le fragilise pour passer les 2 tuyaux
problème 2 : espacer correctement les tuyaux qui seront parallèles sans se tromper : la dalle coulée , il ne sera plus possible de les espacer différemment .
- possibilité 2: faire un raccordement avec une culotte à 45 sous la dalle des 2 évacuations EU et EV, ce qui permet de ne sortir qu'un seul tuyau de 100 vers le tuyau de 160
Question 2: est ce que ca se fait ? y a t il un risque de se boucher a cet endroit ?
probleme 3 : gabarit des tuyaux en parallèle = 25 à 30 cm du mur .
- possibilité 3 : ne faire sortir qu'un seul tuyau de 100 sur lequel je raccorde les Eaux vannes et les Eaux usées .
Ce dernier me semble plus simple et moins couteux mais peut être plus risqué en cas de bouchage
les 3 possibilités sont elles réalisables ?
laquelle me conseillez vous ?


