Sujet : besoin d'aide... pour concevoir le shéma
Bonjour à tous,
Je suis totalement novice en plomberie et vous allez vite vous en apercevoir (lol)
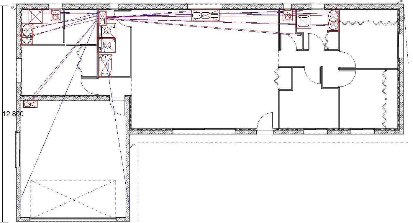
Je vous joins un plan (si l'on peut appeler ça ainsi) pour vous montrer l'intérieur de la maison en construction et mes premières esquisses.
D'un point de vue du chauffage nous avons prévu une PAC air/air en gainable donc rien à prévoir en plomberie.
Pour l'ECS, nous allons mettre un ballon thermodynamique. (si vous avez des modèles à nous conseiller, n'hésitez pas)
Je n'ai mis que les différents PER, sachant que je ne sais déjà pas s'il faut que tous les départs se fassent du cellier d'un point de vue des clarinettes (c'est comme ça que l'on dit?).
Si j'ai bien compté, il y aurait 16 départs pour le PER bleu et 10 pour le PER rouge.
J'aimerai avoir une installation qui soit performante (arrivée d'eau chaude rapide) et silencieuse. Faut-il faire un bouclage pour l'eau chaude ou cela est-il déconseillé du fait que nous avons un ballon thermodynamique? (j'ai lu ça sur un forum... par rapport à la PAC du ballon thermo)
Pourriez-vous me guider à concevoir le plan pour la plomberie et m'aider à lister mes besoins en matériaux pour effectuer les devis?
Au fait, certains font des jolis plans... avec quel logiciel faites-vous?
Merci pour votre aide.


