Sujet : quel multicouche pour une liaison local technique et bureau de 25 m ?
Bonjour
Je rénove une longère ancienne, et je vais mettre en place un local technique qui contiendra une solution de chauffage et ECS solaire + chaudière à granulés.
Actuellement j'aménage un bureau avec 1 SDB et 2 chambre d'amis à l'étage, et j'ai besoin d'amener ECS et chauffage.
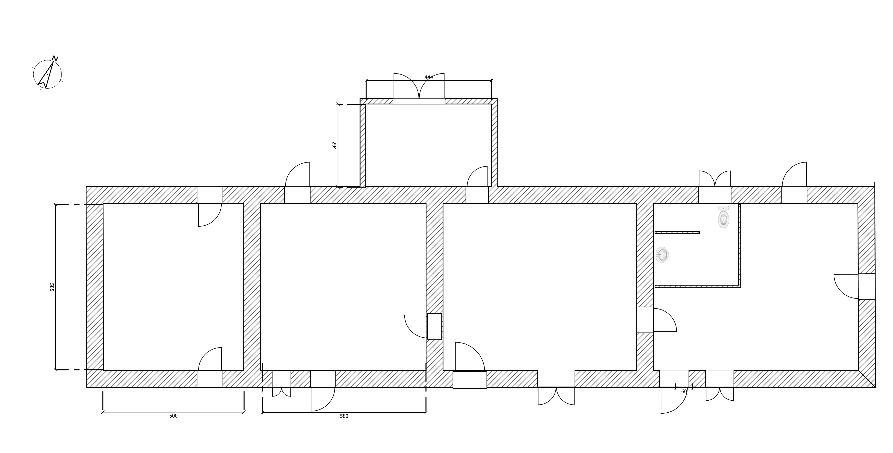
Il y a 15 m entre les deux portes (cf plan), que je passe par l'extérieur ou par les combles j'ai besoin de 25 m de tuyaux. Mais par l'intérieur je peux placer les tuyaux au niveau des plafonds de chambres, dans 40 cm d'isolant (cellulose soufflée), mais il y a environ 5.5 m entre le sol du local technique et le plafond des chambres.
j'ai trouvé des abaques avec des tableaux de pertes de charges, une explication des formules de calculs des diamètres, avec un tableau "pratique" indiquant qu'un tuyau de 20 mm interne permet de faire passer de 6.3 à 12.5 kW selon la température de l'eau ce qui est suffisant pour mes besoins en chauffage.
Ma question : quel diamètre de tuyaux dois je utiliser ? multicouche 20/26 ou 26/32 ?
quelques compléments d'info :
- chauffage par murs chauffants en terre et multicouche de 16 mm
- bureau : 44 m2, isolation par l'extérieur en paille enduite R6 au nord, et par l'intérieur au sud R 4
- cellulose insufflée ou soufflée en toiture : rampants R8, plafonds R10
- isolation sous dalle, R3.5, sol en plancher massif chêne
- petit ballon électrique pour avoir de l'ECS bien chaude dans la SDB
- chaudière à granulés pour l'ensemble, sans doute Guntamatic
plan du RDC : dans l'ordre, de l'ouest vers l'est (de la gauche vers la droite) : local technique (5.90 x 5 m), salon (5.90 x 6 m), cuisine /Sà M (5.9 x 7 m), bureau (5.9 x 7.5 m)
Merci de votre aide
Cdlt


