Sujet : plan d'évacuation et ventilation
Bonjour à tous et merci pour vos futurs conseils.
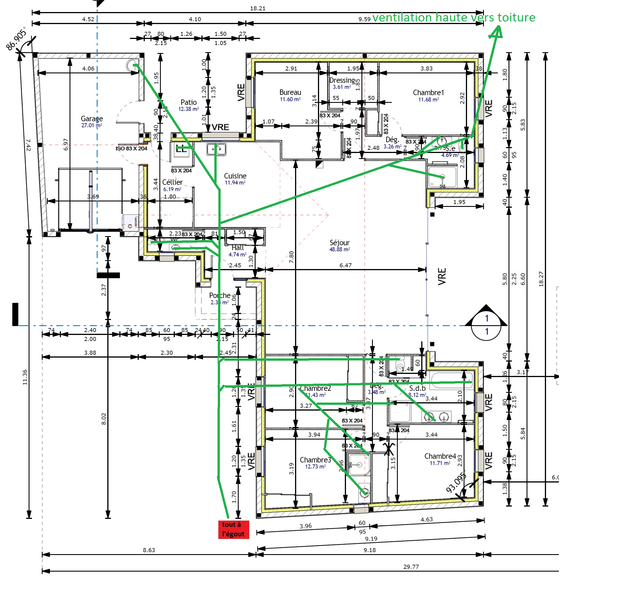
Je suis sur une construction de maison et j'aurais voulu avoir l'avis des pros pour le plan des tuyaux d'évacuation.
Pourriez vous me dire comment vous feriez car j'ai beaucoup de sorties.
On m'a aussi dit qu'un WC doit être absolument en tuyau seul pour éviter tout problème. C'est vrai?
A aucun moment on m'a parlé de ventilation sur ma maison plain pied? En faut il une?
Je vous joins mon plan de maison. merci.


