Sujet : distance de raccordement + effet siphon?
Bonjour,
J'ai prévois de refaire le RDC d'un duplex.
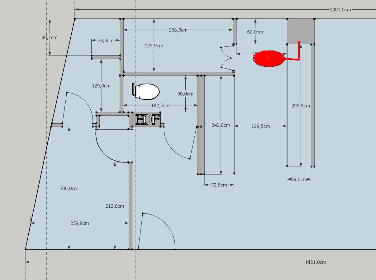
J'ai un toilette à l'étage et un au RDC. La façon dont je veux agencer mon appart est donné sur l'image. Du coup, le toilette du bas se retrouve un peu loin de l'évacuation (croix bleue).
J'ai prévu de mettre un WC suspendu légèrement rehaussé pour avoir une pente suffisante et le faitre cheminer suivant le trai rouge.
La personne qui est en train de chiffrer mes travaux, me dit que cela n'est pas faisable car il n'y a pas que l'effet gravitationnel qui compte. IL m'a parlé d'un effet siphon. Je n'arrive pas à comprendre où serait le problème.
Quel est votre avis? Qu'est ce qui pourrait faire que ça ne serait pas faisable?
Merci


