Sujet : conseil et validation schéma
Bonjour a tous, je suis novice donc ne soyez pas trop sévére avec moi.
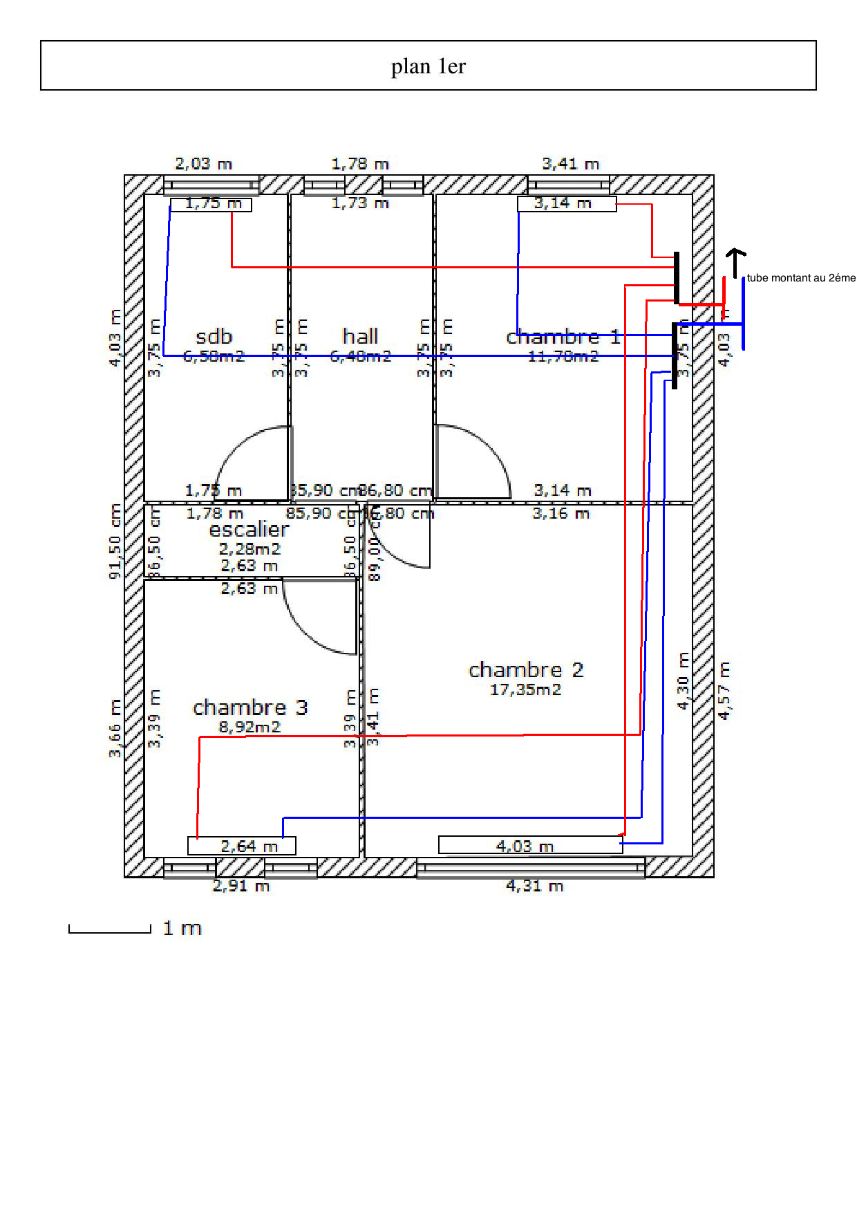
C'est une maison avec un rez de chaussé, une cave, le 1eret enfin un 2éme etage.
les plafond on une hauteur de 330cm.
les combles sont assez bien isolé, les mur son moyennement isolé et les fenétres sont en double vitrage.
Donc voici mes schéma ne prenez pas en compte la trajectoire des tube il seront soit encastré et/ou sous plancher.
merci a tous


