Sujet : MOB sur Hasparren
Bonjour,
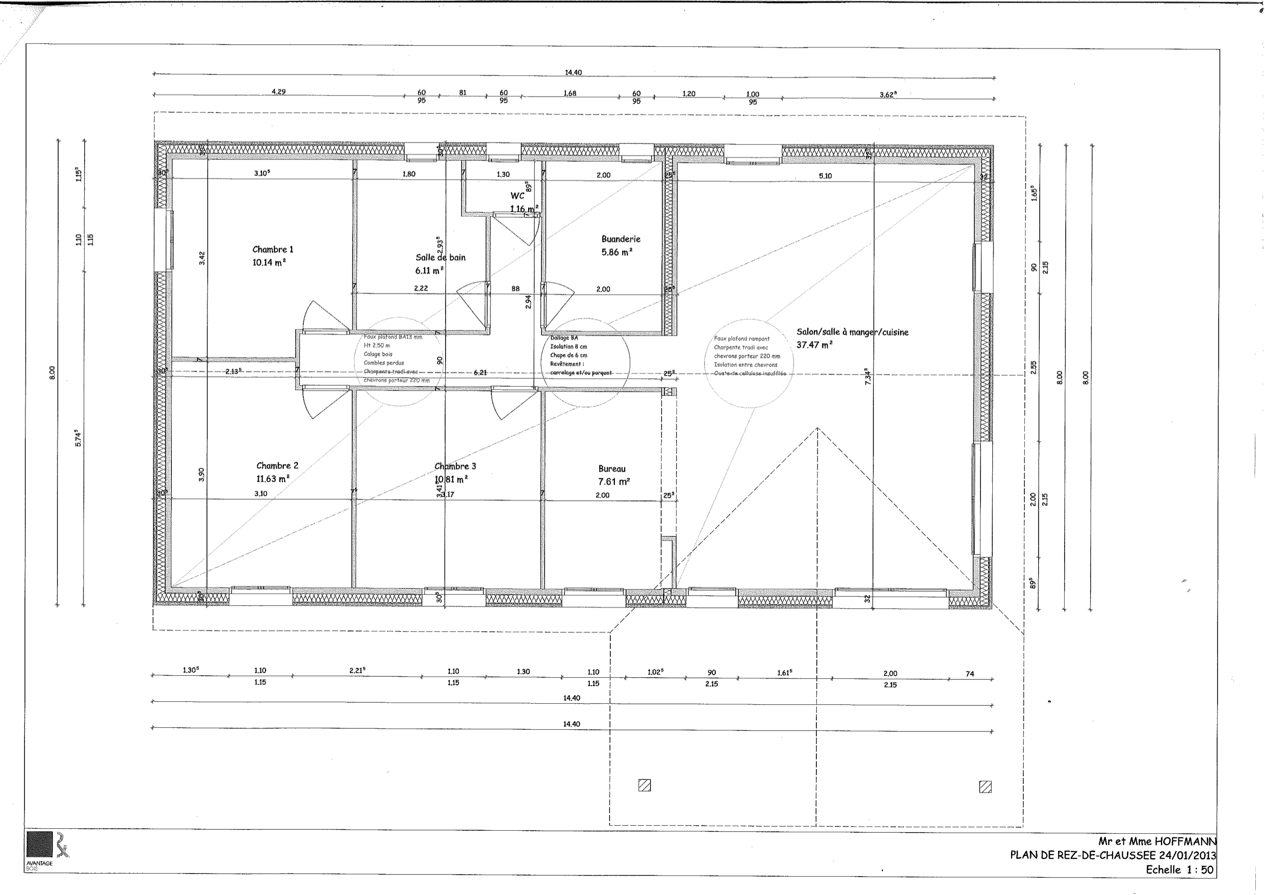
je suis sur la construction de ma maison en ossature bois au Pays Basque.
Arrive le moment pour moi ou je dois me préparer à la plomberie.
N'étant pas du métier, je viens donc de m'inscrire sur ce forum pour trouver de l'aide.
Je pars donc sur du plein pied et vais utiliser du PER pour sa facilitée d'exécution.
J'ai vu certain schéma plutôt réussi et je me demande ou vous trouver le logiciel ou les logos nécessaires pour représenter les raccords et gaines pour que je puisse vous donner mon premier shéma
A bientôt.
Raf


